Fertigstellung der Konzeptplanungen und Baubeginn bei der Modernisierung einer Eigentumswohnung im Raum Frankfurt….

Nachdem raum in form- Innenarchitektur & Architektur im Juni dieses Jahres mit den Konzept- und Ausführungsplanungen für die Modernisierung einer Eigentumswohnung im Raum Frankfurt beauftragt wurde, wurden innerhalb von nur vier Wochen die Konzept- und Ausführungsplanungen fertiggestellt. Unmittelbar nach Besprechung und Freigabe der Konzept- und Ausführungsplanungen wurde die raum in form- Bau- und Sanierungsgesellschaft mit […]
Dornbracht, ein exklusiver Lieferant für Bad-, Küchen-, und Spa-Produkte, zu Besuch bei raum in form – Objekteinrichtungen…

Einer unserer langjährigen Lieferanten im Bereich Bad-, Küche und Spaprodukten war wieder in unserem Stammsitz in Heppenheim zu Besuch und stellte ausführlich die Neuheiten seiner Kollektionen CYO und MADISON vor. Die Armaturen von Dornbracht haben sich einen Namen gemacht, indem sie Originalität und Persönlichkeit zum Ausdruck bringen. Jedes Produkt ist einzigartig in seinem Charakter und […]
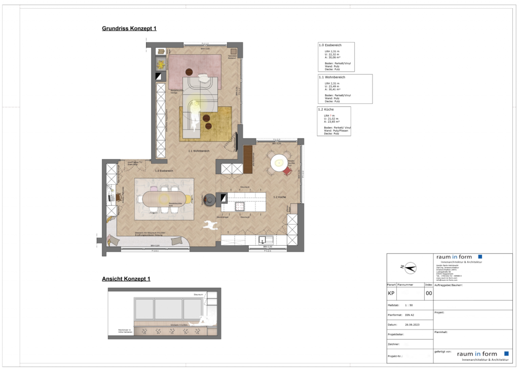
Fertigstellung der Konzeptplanungen für die Neukonzeptionierung des Wohnbereiches eines Einfamilienhauses im Raum Heidelberg….

Im Mai 2023 wurde raum in form – Innenarchitektur & Architektur damit beauftragt, ein einheitliches Konzept für die Neukonzeptionierung eines Einfamilienhauses bei Heidelberg zu entwerfen- dabei sollten u. a. der Wohn- und Essbereich und die Küche des Einfamilienhauses neu konzeptioniert werden sowie alle Räumlichkeiten des Gebäudes aus den 1970-er Jahren modernisiert und auf die Bedürfnisse […]
Aktueller Bautenstand bei der Modernisierung und dem Umbau einer 600 qm großen Finca auf Ibiza…

Kontrolle der ausgeführten Restarbeiten End-Kontrolle und Abnahme der fertiggestellten Gewerke Erledigung von Restarbeiten und Fertigstellung der Gewerke Elektro, Sanitär, Heizungs- und Klimatechnik Fertigstellung der Bodenbeläge in den Außenbereichen Fertigstellung der Montage der außenliegenden Klappläden an den Fenstern Einbringung der neu konzipierten Einrichtung und der Dekorationselemente in die Innenbereiche Befüllen der neu gebauten Pflanzbeete im Außenbereich […]
Aktueller Bautenstand des zweiten Bauabschnitts der Modernisierung eines Bürokomplexes im Raum Darmstadt…

Herstellung und Verschluss der Wandschlitze für die Elektroinstallationen Verschluss der Bodenöffnungen der Bodentanks Verstärkung der Trockenbauwände Vorbereitung der Fußbodenheizungsinstallation Vorbereitung der Installation des Verteilerkastens
Aktueller Bautenstand bei einem unserer Modernisierungsprojekte im Raum Weilmünster/Limburg…

Abkleben der Fenster Auftragen von Grundierung Auftragen des Oberputzes Verreiben des Oberputzes Aussparung im Putz für einen dekorativeren Putz herstellen Bitumenbelag am Eingang des Gebäudes mechanisch entfernt Schleifen des Bodens und der Randkante mit einem Diamantschleifer Boden mit Epoxidharz grundiert und abgesandet Hohlkehle hergestellt
Aktueller Bautenstand bei dem Neubau eines Garagenkomplexes im Kreis Bergstraße…

Bodenaufbau mit Schotter Abschieben des Splitts Verlegung der Pflastersteine im Wildverband Abdichten der Sockel mit Flüssigkunstoff Verputzen der Wände mit Zementputz
Aktueller Bautenstand des Neubaus einer Fahrzeug-Halle mit Garagen und einer Waschstation in Weinheim…

Anschluss der Entwässerung an die Regenwasserzisterne Stellen der Trockenbauprofile zur Unterteilung der Garagen Beidseitige Beplankung der Trockenbauprofile in den Garagen Stellen der Trockenbauprofile zur Abteilung des Bades Einseitige Beplankung der Trockenbauprofile in der Fahrzeug-Halle Planum herstellen Abschieben des Splitts Verlegung der Pflastersteine im Wildverband
Baubeginn bei dem zweiten Bauabschnitt der Modernisierung eines Bürokomplexes im Raum Darmstadt…

Baustelleneinrichtung Rückbau sämtlicher Bodenfliesen und Teppichbodenbeläge Entfernung von sämtlichen Tapeten und Wandfliesen Ausbau der Unterdecken Abbruch sämtlicher Innenwände und Trockenbauwände zur Öffnung des Raumes für die zukünftige Nutzung als „Open- Space“- Büro Rückbau der WC-Anlagen und Waschtische Ausbau der Küchenzeile Positionierung neuer Trockenbau-Ständerwerke Einseitige Beplankung der Trockenbauprofile als Vorbereitung für die Elektroinstallation in den Trockenbauwänden
Aktueller Bautenstand bei der Modernisierung und dem Umbau einer 600 qm großen Finca auf Ibiza…

Baubesprechungen mit allen Firmeninhabern der in den Bau involvierten örtlichen Handwerksbetriebe, Durchsprache und Kontrolle der Restarbeiten und des Bauzeitenplans End-Kontrolle und Abnahme der fertiggestellten Gewerke Einbau weiterer Sanitärobjekte in den Bädern Endmontage von Schaltern und Steckdosen sowie der Thermostate der Fußbodenheizung Verputz- und Malerarbeiten in allen Innen- und Außenbereichen Einbau und Abnahme der außenliegenden Klappläden […]