Individuelle Konzept- und Entwurfsplanungen für Privat- und Gewerbeobjekte

Sie planen die Sanierung oder Modernisierung, den Um- oder Anbau oder den Neubau einer Immobilie – mit dem 30- köpfigen Team von „raum in form – Innenarchitektur & Architektur“ haben Sie von Anfang an erfahrene und kompetente Partner bei der Umsetzung Ihres Projekts an Ihrer Seite.

Wir können Ihnen bei der Realisierung Ihrer Vorhaben und Projekte durch unser Team aus erfahrenen Architekten und Innenarchitekten, kreativen und talentierten Bachelor- und Masterabsolventen der Architektur und Innenarchitektur, durch unsere erfahrenen Bau- und Projektleiter sowie durch unser weitreichendes Netzwerk, das z. B.  aus erfahrenen Fachingenieuren, qualifizierten Handwerksbetrieben und aus 40 eigenen Handwerkern besteht, für Ihre Projekte und Vorhaben einen ganzheitlichen “Alles aus einer Hand”- Service anbieten.

Unsere Standorte

Region Bergstraße

Ludwigstraße 56
64646 Heppenheim

Region Rhein-Main

Hanauer Landstraße 291 b
60314 Frankfurt am Main

Region Rhein-Neckar

Hauptstraße 8
69117 Heidelberg

Mannheim / Ludwigshafen

Mundenheimer Straße 140
67061 Ludwigshafen

Mallorca

Gremi de Sabaters 21
07009 Palma, Illes Balears, Mallorca

Ibiza

Carrer de Guadalajara 6
07829‎ Sant Josep de Sa Talaia, Illes
Balears, Ibiza

Erstellungen von Konzept- und Entwurfsplanungen

Sie sind Eigentümer eines Grundstücks, welches Sie bebauen lassen möchten oder Sie sind Eigentümer oder planen den Erwerb einer Bestandsimmobilie, die Sie modernisieren und umbauen möchten – das kreative und erfahrene Team von raum in form übernimmt für Sie gerne sämtliche Leistungen bei der Planung und Realisierung Ihrer Vorhaben.

Wir prüfen für Sie z. B. im Vorfeld des geplanten Erwerbs eines Grundstücks oder eines Bestandsgebäudes bereits die Gegebenheiten Vor- Ort, den Bebauungsplan oder die sonstigen baurechtlichen und behördlichen Vorschriften, die für die Erstellung eines Neubaus, die geplante Modernisierung oder den Um- oder Anbau eines Bestandsgebäudes berücksichtigt und beachtet werden müssen. 

In einem ersten Gespräch, für das wir uns gerne 2-3 Stunden Zeit nehmen und das bereits bei Ihnen Vor-Ort stattfinden kann, besichtigen wir ausführlich das Gebäude oder das Grundstück und sprechen in Ruhe über Ihr Vorhaben und Projekt, Ihre Vorstellungen und Wünsche.

Anschließend erarbeiten wir für Sie ein individuell auf Ihr Vorhaben ausgearbeitetes Angebot, welches modular aufgebaut ist und das sämtliche Leistungen wie z. B. die Grundlagenerarbeitung, das Aufmass des Gebäudes oder des Grundstücks, die Konzepterstellung, die Kalkulation der Bau- oder Modernisierungskosten, die Erstellung der Ausführungsplanungen, Ausschreibung und Vergabe der Bauleistungen sowie die Projektsteuerung und Bauleitung umfasst. Alle Bausteine unseres Angebots können auch modular- also einzeln- beauftragt werden.

Nach der Auftragserteilung, die z. B. in einem ersten Schritt die Grundlagenerarbeitung (zu der z. B. erste Gespräche mit den genehmigungsrelevanten Behörden wie dem Bauamt gehören) sowie ein Aufmaß des Bestandsgebäudes oder des zu bebauenden Grundstücks umfassen kann, beginnt das meist mehrköpfige Projektteam unter der Leitung eines erfahrenen Architekten oder Innenarchitekten mit der Entwicklung verschiedener Konzeptionen.

Auf Grundlage der örtlichen Gegebenheiten, Ihres zur Verfügung stehenden Budgets, Ihrer Vorstellungen und Wünsche, erarbeitet das Projektteam mehrere Konzeptvarianten für die verschiedenen Bereiche und Geschosse des zu erstellenden oder zu modernisierenden Objekts. Aufgrund der Qualifikation und der Erfahrung, gepaart mit Talent und kreativem ganzheitlichen Denken und vor allem aufgrund der Leidenschaft jedes Einzelnen unseres Teams für seine Berufung, ist das jeweilige Projektteam in der Lage, Ihnen innerhalb nur weniger Wochen nach Projektstart die ersten Konzeptentwürfe zu präsentieren und gemeinsam mit Ihnen ausführlich zu besprechen. 

Bereits während der Konzeptphase findet ein ständiger Austausch mit Ihnen statt, in dem Sie Ihre Wünsche und Vorstellungen kommunizieren und wir diese aufnehmen, um sie in die Konzepte mit aufzunehmen. 

Unsere erfahrenen Architekten und Innenarchitekten sowie unsere erfahrenen Bau- und Projektleiter (die alle über eine Bau- und Projektleitungs- Erfahrung zwischen 25 und 32 Jahren verfügen) sind bereits vom Projektbeginn an in die Entwurfsplanungen integriert, so dass ausschließlich das geplant und entworfen wird, was innerhalb des geplanten oder zur Verfügung stehenden Budgets fachlich und technisch umsetzbar ist. 

Entwurfsplanung des Neubaus einer Villa

Während der Erarbeitung der Konzeptplanungen erstellen wir parallel zu den Konzeptplanungen und vor allem unter Berücksichtigung Ihrer Vorstellungen und Präferenzen sog. “Moodboards”, in denen wir Ihnen unsere Ideen in Bezug auf die mögliche zukünftige Ausstattung und Einrichtung Ihres Objekts präsentieren. Diese Farb-, Material- und Produktvorschläge (in Bezug auf die Einrichtung und die Ausstattung Ihres Objekts) werden Ihnen im Rahmen eines ausführlichen, meist mehrstündigen Termin präsentiert und gemeinsam mit Ihnen ausführlich erörtert.

Basierend auf Ihrem anschließendem Feedback und der meist sehr intensiven Kommunikation zwischen Ihnen und dem Projektteam im Anschluss dieses Termins, erstellen wir für Sie dann als Entscheidungsgrundlage für die einzelnen Bereiche und Geschosse des zu modernisierenden oder neu zu erstellenden Objekts, die jeweils finalen Konzeptionen.

Nachfolgend möchten wir Ihnen verschiedene Beispiele von Konzeptplanungen und Moodboards für die verschiedensten Projekte und Aufgabenstellungen zeigen, die wir für unsere Kunden in den letzten Jahren entwickelt haben.

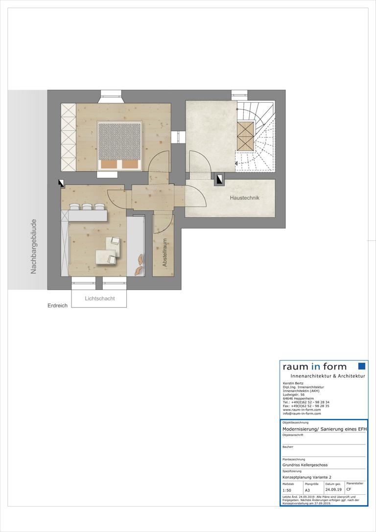
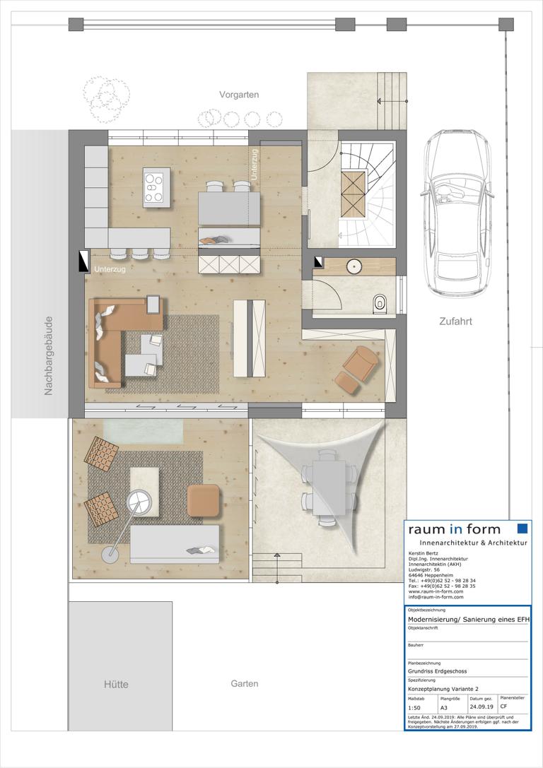
Entwurfsplanungen Modernisierung eines Bestands­gebäudes aus den 1920-er Jahren

Austattungsplanungen– Farb-, Material-, Möbel- und Ausstattungs­vorschläge

Über unser Tochterunternehmen „raum in form– Objekteinrichtungen“ beziehen wir direkt von über 600 Herstellern eine Vielzahl von Bauprodukten wie z. B. hochwertiges Parkett, Feinsteinzeugfliesen, kreative Wandbeläge, modernste Beleuchtung, innovative Schalterprogramme und sämtliches Elektromaterial, Trockenbauelemente usw., die unsere Kunden, für die wir Modernisierungen oder den Neubau von Objekte begleiten, zu attraktiven Konditionen beziehen können.

Darüber hinaus sind wir seit mehr als 30 Jahren regelmäßig auf allen wichtigen Möbel- und Einrichtungsmessen wie der Internationalen Möbelmesse in Köln, den Einrichtungs- und Ausstattungsmessen Ambiente und Tendence in Frankfurt sowie der weltgrößten Sanitärausstattungsmesse ISH. Darüber hinaus sind wir ebenfalls seit mehr als 30 Jahren auf den wichtigsten internationalen Messen wie der “Salone di Mobile” in Mailand und der weltgrößten Messe für Fliesen in Bologna.

“raum in form- Objekteinrichtungen” hat sich über mehr als drei Jahrzehnte ein umfangreiches Hersteller- und Lieferanten- Netzwerk aufgebaut, von dem unsere Kunden durch die Möglichkeit, alles was zu der Ausstattung und der Einrichtung eines Objekts benötigt wird, zu attraktiven Konditionen zu beziehen, profitieren. In unserem Showroom am Stammsitz in Heppenheim a. d. Bergstraße bieten wir Ihnen gerne in einem persönlichen Beratungstermin die Gelegenheit, Ihnen die Produkte unserer Hersteller und Lieferanten ausführlich zu zeigen.

Visualisierungen

Visualisierungen der von uns für Sie entwickelten Konzeptplanungen bieten Ihnen eine zusätzliche Möglichkeit, sich die Entwürfe, die wir für Sie entwickeln, bereits während der Planungsphase noch besser vorstellen zu können. Diese Visualisierungen können wir für Sie in verschiedene Qualitätsstufen erstellen- bis hin zur fotorealistischen Darstellung, so dass Sie bereits während der Planungsphase sehen, wie Ihr Objekt nach der Realisierung aussehen und wirken wird.

Konzeptionen für Gärten und Außenbereiche

Gerne erstellen wir für Sie im Rahmen unserer ganzheitlichen Entwurfsplanungen auch Konzeptionen für die Neugestaltung der Außenbereiche inklusive der Gartenplanung Ihres Modernisierungs- oder Neubauprojekts. In der nachfolgenden Galerie sehen Sie Beispiele von in den letzten Jahren für Kunden entwickelte Garten- und Außenbereichs- Entwurfsplanungen.

Broschüre

Einrichtungskonzeption einer Villa auf Ibiza

Bereits während der Entwurfsphase können wir für Sie nach Ihren Wünschen und Vorstellungen gerne auch individuelle ganzheitliche Einrichtungskonzeptionen entwickeln.

Für diese Einrichtungskonzeptionen erstellen wir für Sie und Ihr Projekt eine umfangreiche Broschüre mit einer Vielzahl von Vorschlägen, so dass Sie hinsichtlich jedes Bereichs Ihres Projekts, den Sie neu einrichten oder gestalten möchten, konkrete Vorschläge in Bezug auf Möbel, Badausstattungen, Beleuchtung, Wandgestaltungen usw. erhalten.

Auf Basis Ihrer Auswahl können Sie über unser Schwesterunternehmen raum in form- Objekteinrichtungen sämtliche Möbel, Ausstattungen und sonstige Einrichtungsgegenstände zu attraktiven vergünstigten Konditionen beziehen.

Beleuchtungskonzepte

Auf Basis der mit Ihnen abgestimmten finalen Konzeptlanungen entwickeln wir für Sie ganzheitliche Beleuchtungskonzepte unter Berücksichtigung aller neuesten Entwicklungen und Technologien, insbesondere in Bezug auf innovative und energiesparende Lösungen. Die Beleuchtungs- und Elektroplanungen sind dann Grundlage für die weiteren Planungen und unsere Smart- Home Konzepte.