Fertigstellung der Konzeptplanungen für die Neukonzeptionierung und den Umbau eines Zweifamilienhauses in Karlsruhe in ein Mehrfamilienhaus mit 4 exklusiven Wohnungen…

Nachdem „raum in form– Innenarchitektur & Architektur“ im Mai dieses Jahres mit der Grundlagenerarbeitung, den Konzeptplanungen sowie mit der Kostenschätzung für die Neukonzeptionierung und den Umbau eines Zweifamilienhauses in Karlsruhe in ein Mehrfamilienhaus mit 4 exklusiven Wohnungen beauftragt wurde, begann das Projektteam wenige Tage nach der Auftragserteilung zunächst mit dem örtlichen Aufmaß.

In einem ausführlichen Konzept- Brainstorming und unter Berücksichtigung der von den Bauherren definierten Wünsche und Anforderungen, entwickelte das raum in form- Projektteam mehrere kreative und individuelle Ansätze zu dem gewünschten Umbau und der Modernisierung unter Berücksichtigung der von raum in form entwickelten innenarchitektonischen Gestaltung des zukünftigen Mehrfamilienhauses.

Die im Anschluss erarbeiteten Konzeptentwürfe wurden den Bauherren nur 10 Wochen nach der Auftragserteilung in einer umfangreichen Konzeptvorstellung und in Verbindung mit der Durchsprache der Kostenschätzung für die Bauleistungen und die Gesamtprojektkosten präsentiert.

Vor Planungsbeginn wurden die Grundlagen, d.h. die diversen von dem raum und form- Projektteam unter der Leitung der Unternehmensinhaberin, der Innenarchitektin Kerstin Bertz-Helmbrecht, entwickelten zahlreichen Ideen und Erweiterungs- und Umbaumöglichkeiten mit den jeweiligen Baubehörden der Gemeinde und des Kreises abgestimmt.

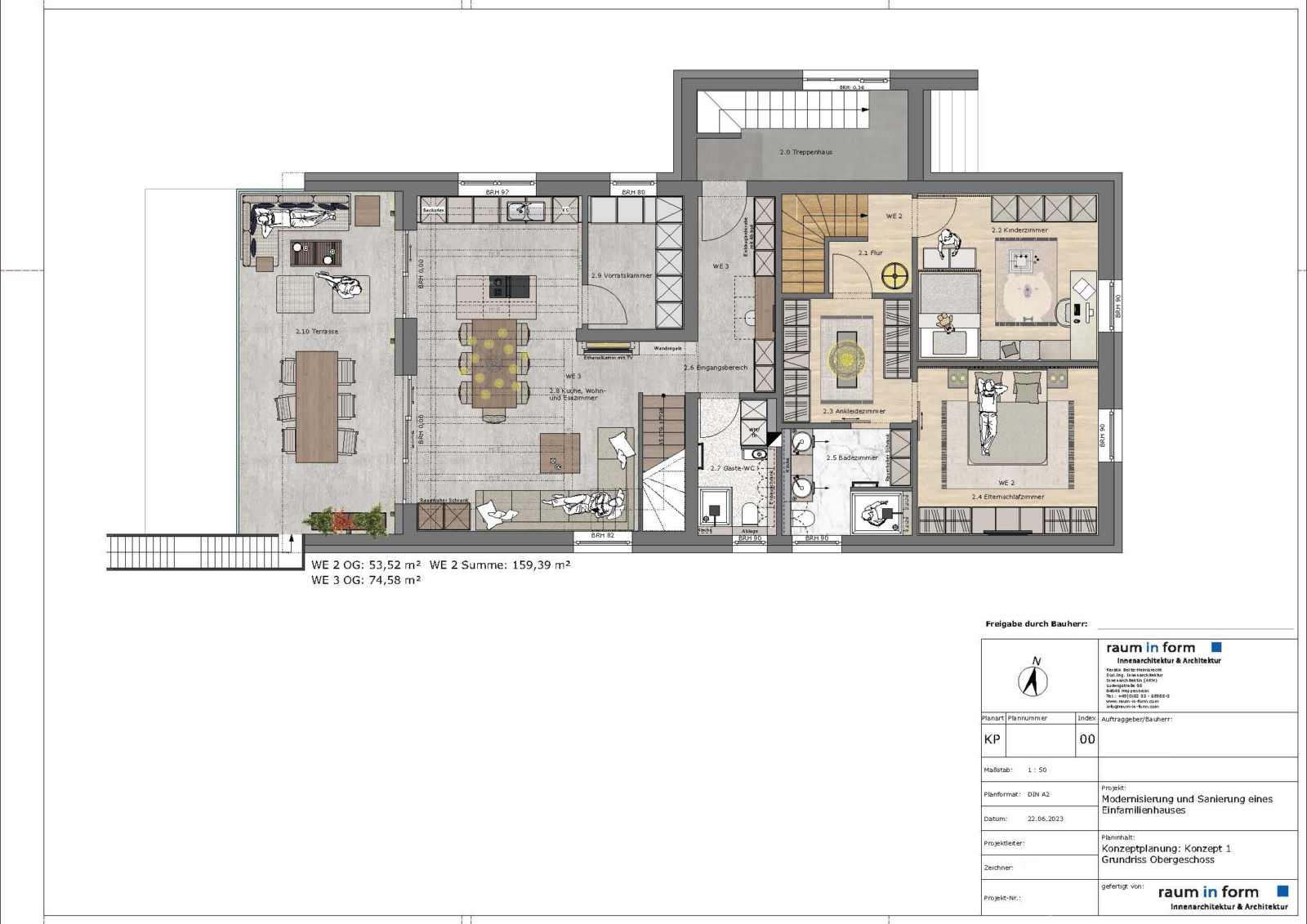
Für das zukünftige Mehrfamilienhaus wurden pro Geschoss zwei unterschiedliche Konzepte erarbeitet, welche im Anschluss an die Konzeptpräsentation und nach den nachfolgenden intensiven Abstimmungen zwischen den Bauherren und dem Projektteam zu einem Finalkonzept zusammengefügt wurden.

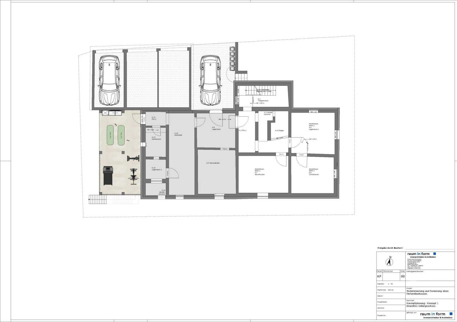
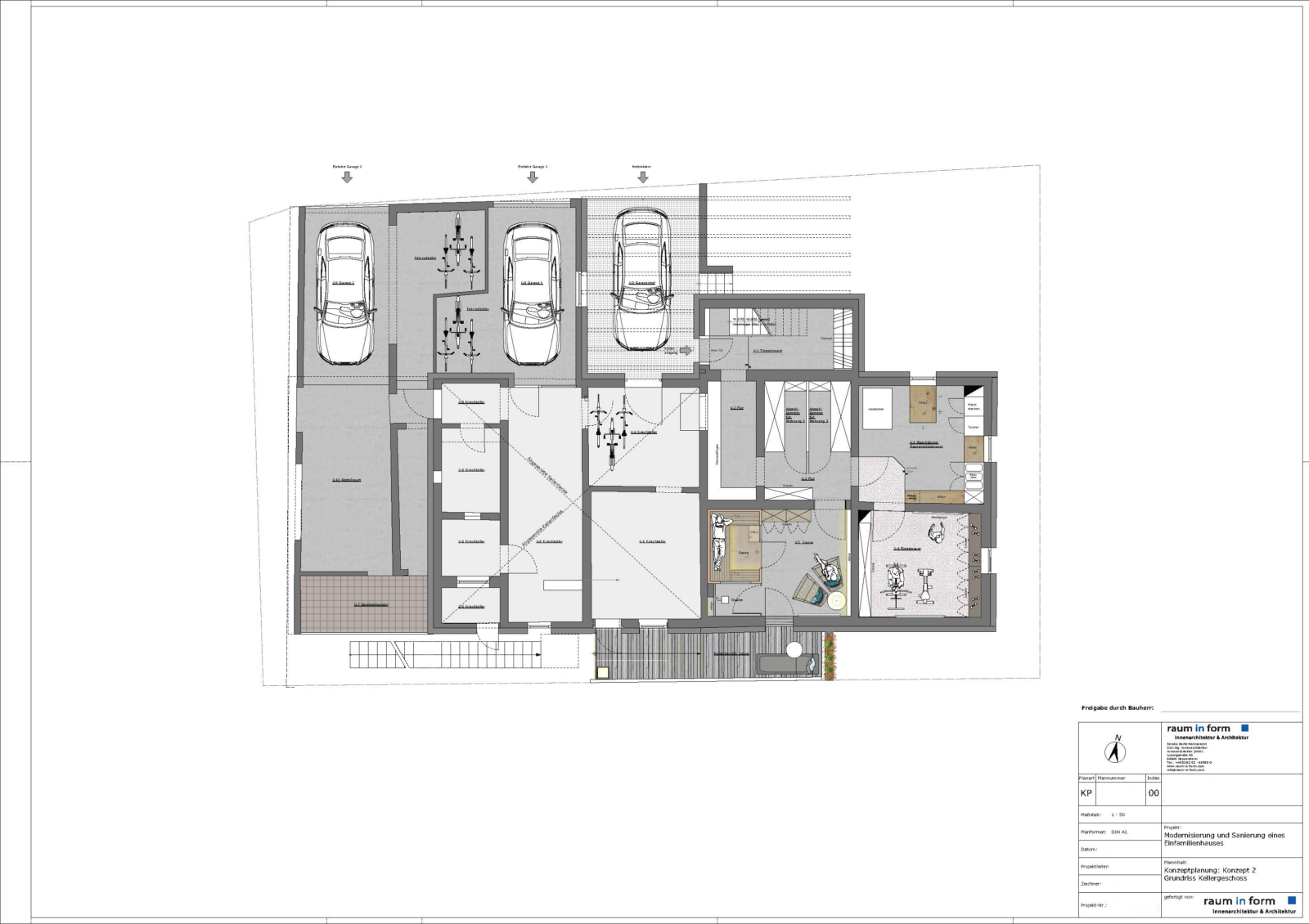
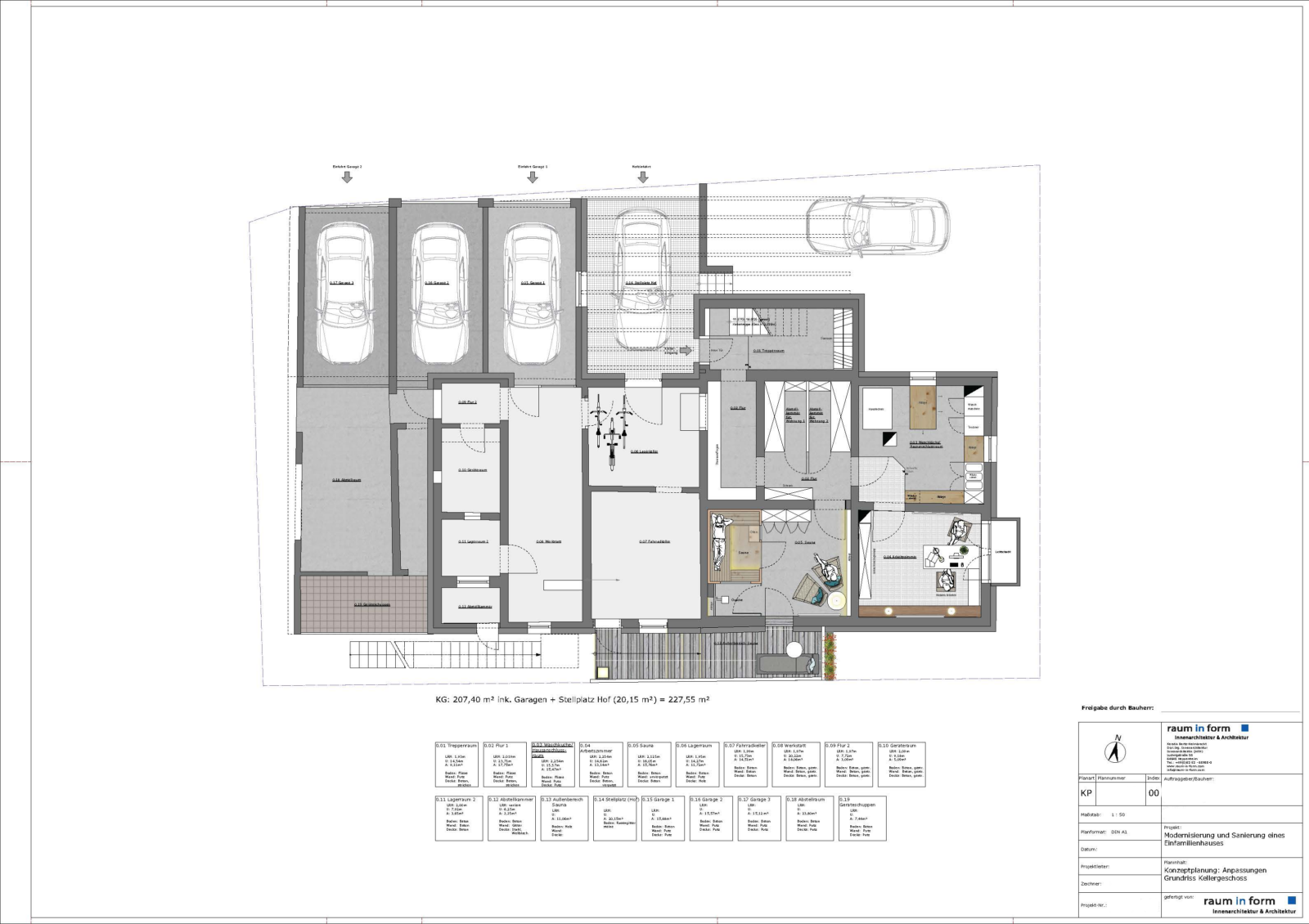
Zusätzlich wurden bereits mit den verschiedenen entwickelten Konzepten mehrere Möglichkeiten des Dachausbaus und der Dachaufstockung konzipiert. Diese Konzeptionen werden nach Erstellung des Finalkonzepts durch die raum in form- Fachingenieure wie z. B. durch einen erfahrenen Statiker und einen Energieberater weiter detailliert.

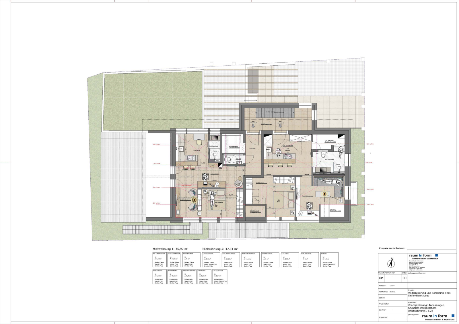
Die Herausforderung in der Konzepterstellung bestand darin, zwei Familien gleichwertige Wohnungen mit Blick in den großzügigen Garten im rückwärtigen Bereich des Grundstücks zu errichten und zusätzlich zwei Wohnungen zur späteren Vermietung einzuplanen.

Beide vorgestellten Konzepte zeigen dabei eine komplexe Verschachtelung der Wohneinheiten, sodass beide großen Wohneinheiten sich über zwei Geschosse erstrecken, die jeweils über ein eigenes Treppenhaus erschlossen werden.

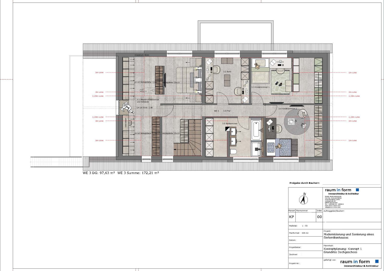
Durch die geplante Aufstockung des Dachs und den Bau von mehreren großzügigen Gauben wird im Dachgeschoss zusätzlich ein heller und großzügiger Wohnraum geschaffen. Große Terrassen in Richtung Garten erlauben einen Zugang aus beiden Wohneinheiten in den Grünbereich.

Im Finalkonzept werden nun die beiden großen Wohnungen der Bauherrinnen auf jeweils ein Geschoss aufgeteilt, sodass im Dachgeschoss die beiden Mieteinheiten entstehen können.
Die Innenräume der beiden großen Wohneinheiten sind geprägt von einem offenen Raumprogramm, in welchem der Wohn-/ Ess- und Kochbereich ineinander übergeht. Neue große Fensterfronten und teilweise holzverkleidete Fassaden werden dem Gebäude aus den 1980-er Jahren eine zeitgemäße Modernität verleihen.

Zusätzlich zur Neukonzeptionierung und Erweiterung der Innenräume, wird das Gebäude umfangreich modernisiert und im Zuge dessen auch nach neuesten Standards energetisch saniert.