Die Eventlocation „Gossini“ in Heppenheim

Neukonzeption und Kernsanierung des ehemaligen Vereinshauses in Heppenheim

Neukonzeption und Kernsanierung des ehemaligen Vereinshauses in Heppenheim zu der Eventlocation „Gossini“ mit Bar, Restaurant, Veranstaltungssaal und Konferenzräumen

 

“Da hat sich mancher, der zum Start in die neue Ära ins Vereinshaus gekommen ist, verwundert wie begeistert die Augen gerieben…Das Haus hat einen Wandel durchlebt, der dem geschichtsträchtigen Restaurant ein komplett neues Erscheinungsbild gibt….Im Heppenheimer Traditionsrestaurant Vereinshaus hat eine neue Zeitrechnung begonnen…die Eröffnung war furios.”

Darmstädter Echo

“…ein historisches Gebäude mit neu geschaffenem modernem Ambiente, bei dem die Optik bis ins Detail abgestimmt ist, die Mischung scheint perfekt. In Heppenheim erwacht das traditionsreiche Vereinshaus zu neuem Leben und strahlt dabei einen Charme aus, in dem vergangene Zeiten und Heute wunderbar zusammen finden…Kerstin Bertz, die mit ihrem Büro “raum in form” ein ansprechendes Konzept entwickelt habt, das die geschichtsträchtige Substanz perfekt mit moderner Innenausstattung eint.”

Starkenburger Echo

 

“Symbiose zwischen Moderne und dem Erhalt historischer Werte…das ehemalige Vereinshaus ist nicht wiederzuerkennen…eine einzigartige Eventlocation…ein Ambiente mit Lounge-Charakter…auch lichttechnisch macht dem “Gossini” so schnell niemand was vor…”eine intensive und vertrauensvolle Zusammenarbeit” loben Gisela und Hans-Jürgen Goss das Heppenheimer Innenarchitektur- und Architekturbüro “raum in form.”

Weinheimer Nachrichten

 

Spricht man vom „Vereinshaus“, werden bei vielen Heppenheimer Bürgern Erinnerungen wach, die teilweise bis in die Kindheit zurückreichen. Wie viele Veranstaltungen und Feiern, vom Elternabend der “KJG” über den Geburtstag der Oma bis zur legendären „Weiberfastnacht“, wurden hier veranstaltet!

Und dann – plötzlich- „das Aus“ des in der Zwischenzeit in „Kupferkessel“ umbenannten Hauses, nachdem der Pächter gekündigt hatte und sich zunächst kein Interessent für den Weiterbetrieb finden konnte. Da war es für Heppenheim ein Glücksfall, dass die Eheleute Gisela und Hans-Jürgen Goss sich in der Verantwortung sahen, ein Stück Heppenheimer Geschichte zu retten und das Traditionshaus wieder in neuem Glanz erstrahlen zu lassen. Dabei war von Beginn an klar, dass die vormalige Nutzung des Hauses zum Einen weiterhin möglich sein sollte, dass diese allerdings um zahlreiche weitere Nutzungsmöglichkeiten ergänzt werden sollte.

Impressionen vor dem Umbau

Der erste Schritt der Bauherren in Richtung Sanierung, Neugestaltung und Wiedereröffnung des geschichtsträchtigen Hauses war, das Heppenheimer Innenarchitektur- und Architekturbüro-„raum in form“ mit der Erstellung eines zeitgemäßen Nutzungs- und Gestaltungskonzeptes sowie mit der Projekt- und Bauleitung zu beauftragen. Aufgrund des ambitionierten Zeitplans für den Umbau und die Neugestaltung des Hauses ging das gesamte Team von „raum-in-form“ unter der Leitung der beiden Diplom-Ingenieure der Innenarchitektur Kerstin Bertz im Januar diesen Jahres an die Arbeit.

Da es keine verwertbaren Bestandspläne gab, musste aufgrund der verwinkelten und zahlreichen Einzelräume unter teils schwierigsten Bedingungen zunächst ein genaues Aufmaß aller Räume erstellt werden. Nach intensiver Inaugenscheinnahme des Bestandes und Prüfung der technischen Ausstattung wurde schnell klar, dass man hier mit einem massiven Sanierungsstau konfrontiert war und dass nur eine grundlegende Kernsanierung in allen Bereichen zum Erfolg führen kann!

Beginnend mit einer Erneuerung/ Modernisierung der Belüftungsanlage über die Neuinstallation von Heizungs-, Sanitär- und kältetechnischen Anlagen bis hin zu allen raumbildenden Ausbauten und der kompletten Möblierung: Gisela und Hans-Jürgen Goss ließen zu keinem Zeitpunkt Zweifel daran aufkommen, dass sie gewillt waren, diesen schwierigen und mit hohen Investitionskosten versehenen Weg gemeinsam mit der Diplom-Ingenieurin der Innenarchitektur Kerstin Bertz von „raum in form“ zu gehen.

Entwurfsplanung

Die außergewöhnlich gute, intensive und vertrauensvolle Zusammenarbeit zwischen Bauherrschaft und „raum in form“ und die Bereitschaft von Gisela und Hans-Jürgen Goss, neue Wege zu gehen und das von “raum in form” vorgeschlagene zeitgemäße, moderne Design umzusetzen, lässt das „Gossini“ nun zu einer außergewöhnlichen Location werden.

Während im Inneren zunächst im Februar und März diesen Jahres der schrittweise Rückbau der Einbauten begann, erarbeitete „raum in form- Innenarchitektur + Architektur“ gemeinsam mit Gisela und Hans- Jürgen Goss ein umfangreiches Nutzungskonzept. Das von „raum in form“ gemeinsam mit Gisela und Hans-Jürgen Goss erarbeitete Nutzungskonzept sieht vor, dass sich die neuen Räumlichkeiten zum Einen wie bisher für kleine und auch große Familienfeiern eignen.

Zum anderen wird es aber auch möglich sein, in den Räumlichkeiten weiterhin größere Vereinsfeiern abhalten zu können. Der Anspruch lag bei der anschließenden Umsetzung des Konzepts, diese Räumlichkeiten so attraktiv und flexibel zu gestalten, dass Unternehmen diese zukünftig für sowohl kleine (10-20 Personen) als auch für größere Konferenzen und Seminare (bis zu 200 Personen) nutzen können.

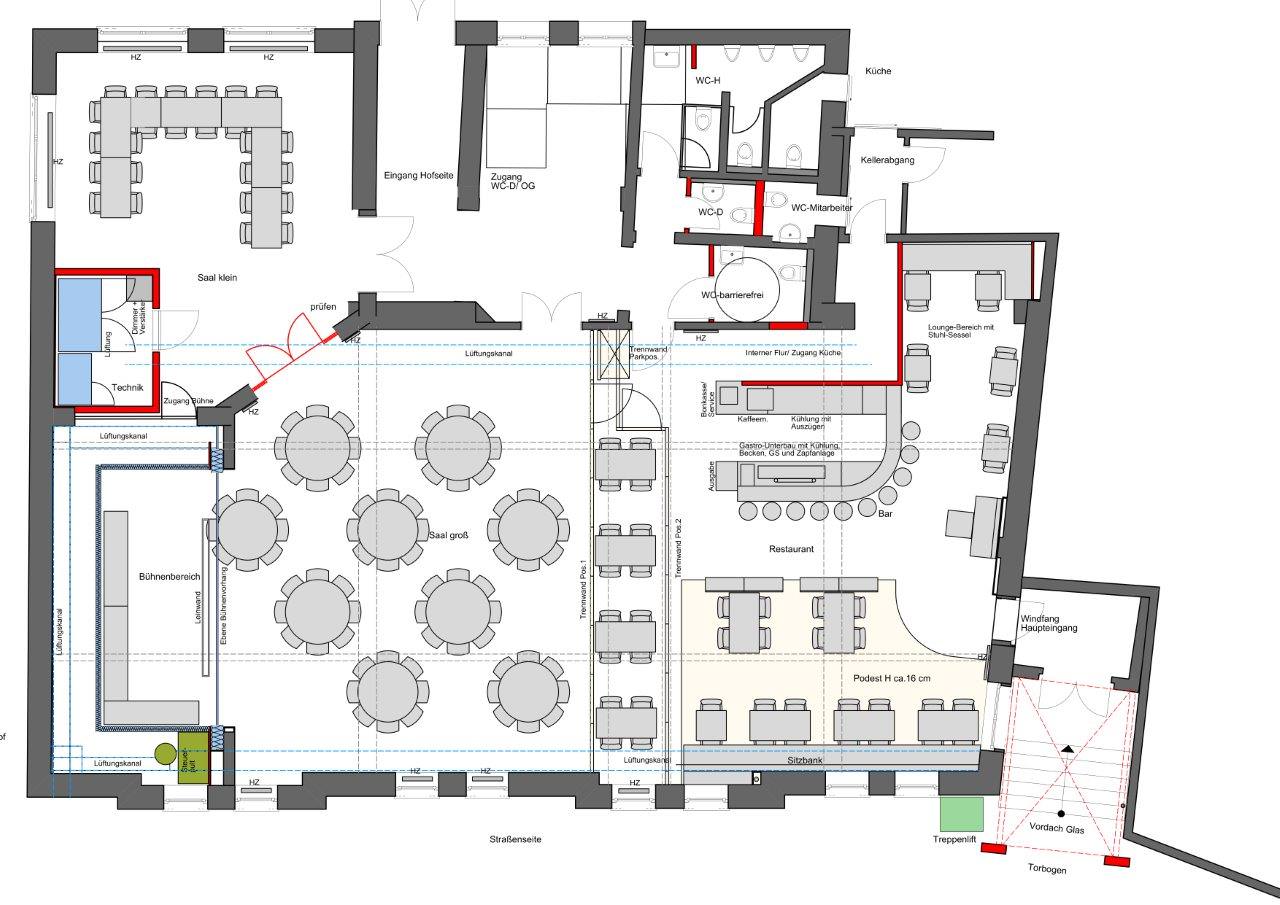
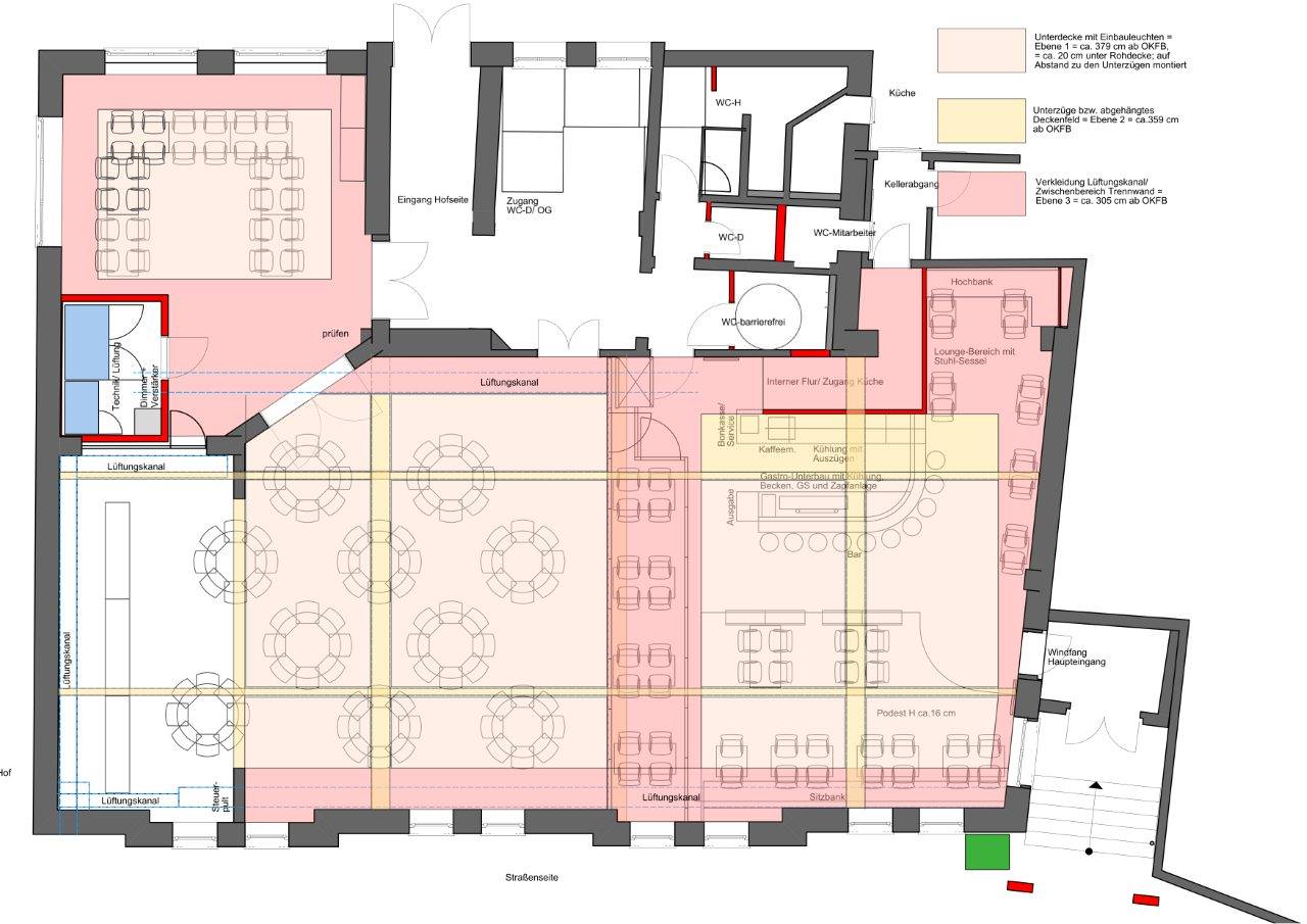
Zusätzlich sollte der Restaurantbereich im Rahmen der Modernisierung um eine großzügige Bar mit angrenzender „Lounge“ erweitert werden. Eine speziell geplante, aufwendig konstruierte variable Trennwand ermöglicht, dass dem Restaurantbereich, der fortan täglich genutzt werden kann, der gesamte Saalbereich zugeschlagen werden kann. Und auch durch die Installation einer modernsten technischen Ausstattung, ist das „Gossini“ nun die ideale Location für Schulungen oder sonstige Firmenevents oder Konferenzen jeder Art.

Ausführungsplanung

Diese Firmenevents oder Konferenzen oder auch alle anderen Veranstaltungen, z. Bsp. im Kleinkunstbereich, finden dank einer flexiblen Bühnenanlage und hervorragender Licht-, Ton- und Videotechnik optimale Voraussetzungen. Darüber hinaus steht ein weiterer Raum zu Verfügung, der wiederum separat oder in Kombination mit dem Saal belegt werden kann. Durch eine Verlegung des Technikraumes ist es nun möglich, die Bühne direkt vom Nebenraum aus zu begehen.

Auch die Verbindung zum Saal ist nicht länger eine Kuriosität. Das Ehepaar Goss scheute keinen Aufwand und nahm den Vorschlag der Diplom-Ingenieure der Innenarchitektur Kerstin Bertz an, die Erdgeschossebene mit weiteren WCs auszustatten sowie am Haupteingang einen Treppenlift zu montieren. So befindet sich nun das Damen-WC nicht länger im 1. Obergeschoss, sondern ebenerdig direkt angrenzend an das Restaurant. Während der nur 7-monatigen Bautätigkeiten wurden vielfältige historische Bauelemente zutage gefördert, deren Erhalt und sensible Einbindung in die neue Gestaltung sowohl den Eheleuten Goss als auch „raum in form Innenarchitektur + Architektur“ äußert wichtig waren.

Neben der Freilegung eines bis dato komplett verblendeten Rundbogens im Saal, der Öffnung des mit Glasbausteinen geschlossenen Bogens im Flurbereich und der „Befreiung“ einer Kassettentüre von flächigen Beplankungen, konnte sogar der Fliesenbelag im Flur und Treppenhaus mit „80er-Jahre-Charme“ behutsam von den sich darunter befindlichen historischen kleinformatigen Fliesen entfernt werden. Schließlich kam zur Freude aller Beteiligten in diesem Gebäudeteil eine heute kaum mehr vorzufindende Steintapete zum Vorschein.

Impressionen während des Umbaus – Teil 1

In enger Abstimmung mit den zuständigen Behörden wurde beispielsweise das Kapitell einer Tür, das nur noch einseitig vorhanden war, originalgetreu nachgebildet. Die Fasen in der Laibung der Rundbögen und der Fensternischen wurden mit großem Aufwand und handwerklichem Geschick wieder herausgearbeitet. Der z.B. durch die Montage einer Aluminiumtür zerstörte alte Fliesenbelag konnte durch an anderer Stelle entnommener und teilweise im Fachhandel für historische Bauelemente zugekauften Fliesen in „Puzzlearbeit“ wiederhergestellt werden.

Als nicht weniger anspruchsvoll und zeitintensiv gestaltete sich die Restaurierung der Steintapete. Auch hier wurden zentimeterweise Materialstücke an einer überdeckten Stelle entnommen, um sie an Fehlstellen in sichtbaren Zonen wieder einzusetzen. Im Restaurant- und Saalbereich wurden die Eisenträger, die zur Überraschung aller bei der Demontage der alten Unterdecke sichtbar wurden, so in das Decken- und Beleuchtungskonzept integriert, dass sie heute frei sichtbar sind und als wesentliches Gestaltungselement wirken.

Des Weiteren wurde entschieden, die noch gar nicht so alten Fenster und Eingangstüranlagen im Rahmen der Kernsanierung zugunsten des Gesamterscheinungsbildes zu erneuern und auch hier den historischen Vorgaben zu folgen. Aufgrund all dieser Maßnahmen und nach vielen Gesprächen und gemeinsamen Terminen mit Vertretern der Stadt Heppenheim, des Denkmalschutzamtes des Kreises Bergstraße sowie des Landesamtes für Denkmalpflege Hessen konnte auf Initiative von „raum in form“, vertreten durch die Inhaberin Frau Dipl. Ing. Innenarchitektur Kerstin Bertz, im Namen der Bauherrschaft schließlich den Antrag auf Aufnahme in die Liste der Einzel-Kulturdenkmäler Hessen stellen. Dem Antrag wurde zwischenzeitlich statt gegeben.

Impressionen während des Umbaus – Teil 2

Für die umfangreichen Arbeiten war es Gisela und Hans-Jürgen Goss, die selbst in Heppenheim seit mehr als drei Jahrzehnten als Unternehmer tätig sind, wichtig, vorzugsweise Handwerker aus Heppenheim und der Region mit der Durchführung der Arbeiten zu beauftragen. Dabei stießen sie bei raum in form auf offene Ohren. Dazu die Diplom- Ingenieurin der Innenarchitektur Kerstin Bertz“Da wir selbst aus Heppenheim sind und seit über 25 Jahren zwar bundesweit, jedoch auch in der Region Bergstraße, im Rhein-Main Gebiet und im Rhein-Neckar Raum tätig sind, verfügen wir über ein umfangreiches Netzwerk und Erfahrungen mit Handwerksbetrieben aller Gewerke.”

Durch die seit Jahrzehnten andauernde gute Zusammenarbeit mit diesen Handwerkern wurde eine Vertrauensbasis geschaffen, die sich, gerade bei anspruchsvollen und komplizierten Objekten, außerordentlich bewährt hat.“ So haben sich die z.T. gezielten Vorgaben der Bauherren bei der Auswahl der Handwerksbetriebe ideal mit den Vorschlägen durch die beiden Innenarchitektinnen ergänzt.

Darüber hinaus war die enge Mitarbeit diverser Fachingenieure aus dem Netzwerk von “raum in form” –insbesondere im Bereich der Lüftungs-, Elektro- und Beleuchtungstechnik erforderlich. So war unter der Führung des mit der Projektleitung beauftragten Innenarchitektur- und Architekturbüros „raum in form“ stets eine hervorragend funktionierende Zusammenarbeit mit allen Bau- und Projektbeteiligten gewährleistet.

Und dass alle Beteiligten mit Herzblut bei der Sache waren, konnte jeder erkennen, der entweder morgens um 7.00 Uhr, in den späten Abendstunden oder sogar am Samstag über den Graben ging: Bei „Gossini“ wurde immer gearbeitet! Frau Dipl. Ing. Innenarchitektur Kerstin Bertz ergänzt hierzu: „Der von uns aufgestellte Bauzeitenplan, dessen Einhaltung für uns neben der Überwachung der qualitativ hochwertigen Kernsanierung des Objekts oberste Priorität hatte, war sehr ambitioniert!

Impressionen während des Umbaus – Teil 3

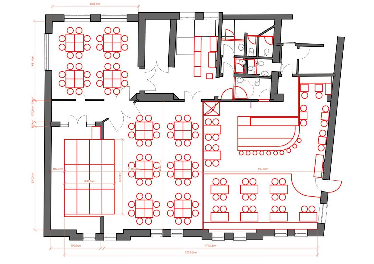
Nach nur 7 Monaten Bauzeit, incl. Rückbau der gesamten Einrichtung und der kompletten Entkernung des Gebäudes, erstrahlt das Traditionshaus nun in neuem Glanz. Das Restaurant, das nach den Entwürfen und detaillierten Ausführungsplanungen von „raum in form“ ausgebaut wurde, überzeugt neben der durchdachten Funktionalität durch sein zeitgemäßes Material- und Farbkonzept. Hier stehen moderne, minimalistisch anmutende Flächen in Beton- und Rostoptik den eleganten hochwertigen Polsterungen in erdigen „braun-beige-Tönen“ gegenüber. Akzentuiert wird das Ganze durch ein elegantes dunkles Violett in den Rückbänken.

Die nur sehr leicht abgetönten, verputzten Wandflächen bieten hierfür den idealen Rahmen. Durch die komplette Neukonzeption und das neue moderne Einrichtungskonzept ist das „Gossini“ zweifelsohne eine Besonderheit, vor allem über die Grenzen Heppenheims hinaus. Beim Betreten der Räumlichkeiten fällt der Blick zunächst auf die großzügige Thekenanlage mit der hinterleuchteten Bar. Der hintere Bereich, im Kontrast zu der organischen Bar, ist mit grafischen, großflächigen farbigen LED-Leuchtflächen ausgestattet und wurde von „raum in form“ gezielt als zentrales Gestaltungselement konzipiert und eingesetzt. Ein Glücksfall für Heppenheim, dass die Bauherren Gisela und Hans-Jürgen Goss den Mut und das Vertrauen hatten, auch diesem Vorschlag der Innenarchitektinnen zu folgen! Harmonisch fügen sich dazu ein attraktiver Lounge-Bereich mit einer Hochbank in einer Nische und Einzelsesseln mit individuell gestalteten Beistelltischen ein.

Bar & Lounge

Hier wird sich jeder wohlfühlen, der in angenehmer Umgebung entweder nur ein Glas Wein trinken möchte oder sich im Kreis einiger Freunde trifft. Lauscht man den Gesprächen in der Region, werden schon jetzt die zukünftigen „Stammplätze“ vergeben! Ein Stehtischbereich zoniert die Thekenanlage vom Essbereich. Die Stehtische sind mit einer teiltransparenten Rückwand mit Einlagen aus Naturmaterial ausgestattet. Dadurch bleibt die Intimität auf beiden Seiten der Anlage erhalten, ohne den Raum optisch zu unterteilen. Dahinter befindet sich der Essbereich. Dieser ist auf einer Podestebene angeordnet, dessen Kante in ihrem Verlauf, der wiederum mit der Thekenform korrespondiert, durch eine Beleuchtung akzentuiert wird. Eine mehrere Meter lange, bequem gepolsterte Bank entlang der Fensterfront wird ergänzt durch moderne hochwertige Stuhlsessel.

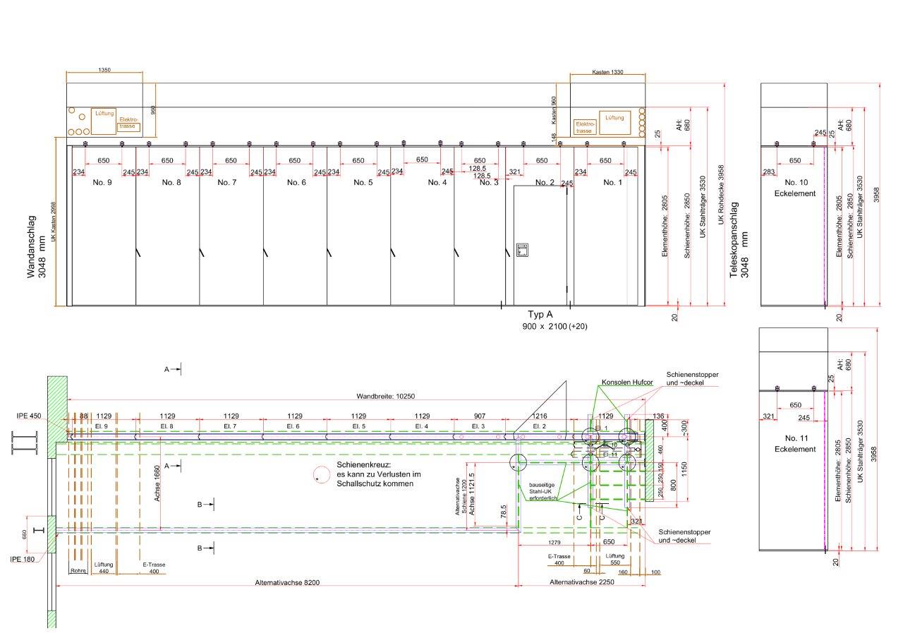
Durch die frei anzuordnenden Tische und Stühle ist auch hier größte Flexibilität geboten. Und durch die erhöhte Position des Bereiches ist nun ein guter Blick auf die Bühne möglich. Ein großer, an die Wand montierter Flat-TV ergänzt das Angebot im vorderen Restaurant. Dezent hält sich die hochmoderne Trennwandanlage im Hintergrund. Diese verbirgt eine anspruchsvolle Technik, die es ermöglicht, Restaurant und Saal in unterschiedlichen, dem jeweiligen Zweck angepasste, Größen zu unterteilen oder aber die Fläche als Ganzes zu nutzen. Auch bei geschlossener Trennwand sind beide Bereiche durch eine integrierte Tür miteinander verbunden. Entsprechende aufwendige in den Raum und die Trennwand integrierte Schallschutzmaßnahmen ermöglichen nun eine voneinander unabhängige Nutzung beider Räume. Das Saaldesign orientiert sich in reduzierter Form an der Gestaltungsidee des Restaurants.

Restaurantbereich

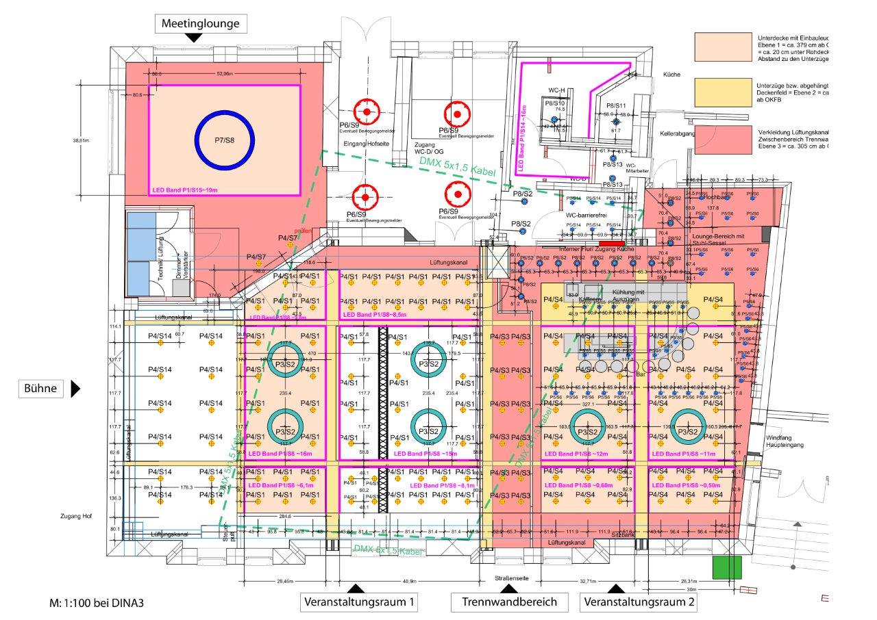
Eine mit Echtholzriemchen gestaltete Wandfläche mit integriertem Flat-TV ziert die Lounge des Restaurants und schafft so eine subtile gestalterische Anbindung. Dass die sonstige Wandgestaltung hier eher zurückhaltend ausgefallen ist, beruht auf der Tatsache, dass hier technische Elemente im Vordergrund stehen. Wer der Vorstellung anhängt, die Atmosphäre eines von Technik geprägten Raumes sei prinzipiell kühl, irrt dabei gewaltig. Gekonnt wurden historische Bauelemente, wie beispielsweise Eisenträger, mit modernen Strukturträgern für die Bühnentechnik und den zahlreichen Strahlern, Lautsprechern und Beamer in die innenarchitektonische Gesamtplanung integriert. Nicht zuletzt durch eine atemberaubende Beleuchtung entstand trotz der Größe hier ein Saal mit Wohlfühlcharakter. Während die Deckenträger indirekt durch LED-Bänder in Szene gesetzt werden, erfolgt die Grundausleuchtung durch unauffällige Einzelstrahler, die in den mit Schallschutzputz versehenen Deckensegeln integriert sind.

Das Highlight aber sind die großen ringförmigen Pendelleuchten. Die moderne Technik erlaubt eine Farbsteuerung, mittels derer sich jeder Situation angepasst werden kann.So ist es jederzeit möglich, den gesamten Deckenbereich z. Bsp. in den Firmen- oder Vereinsfarben erstrahlen zu lassen. Mit der entsprechend modernen Strahlern und Beamern lassen sich großzügig die Firmen- oder auch Vereinslogos auf die Wände und Bühne projezieren. Bei geöffneter Trennwand reihen sich diese modernen Elemente mit den Leuchten des Restaurants aneinander und ergeben ein beeindruckendes Gesamtbild.

Dazu erzeugt der in Holzoptik konsequent durchgezogene Bodenbelag weitere Wärme. Auch der Bühnenbereich wurde so flexibel ausgestattet, dass die Bühnenfläche in jeglicher Form und Größe verändert werden kann oder sogar ganz abgebaut werden kann, um beispielsweise diesen Raum für den Aufbau eines ebenerdigen Buffets zu nutzen. Somit sind der Nutzung keine Grenzen gesetztvon der Bankettbestuhlung für Hochzeiten über Seminarbestuhlung bis hin zur Reihenbestuhlung für Vorträge oder Bühnenauftritte und Public Viewing ist praktisch alles möglich. Der unmittelbar angrenzende Nebenraum ist vom Saal aus durch eine dem historischen Vorbild nachempfundene Türanlage mit einer Sicht- und schallgedämmten Glaseinlage versehen.

Veranstaltungssaal

Blättern Sie jetzt in der Projekt-Dokumentation!

Da die Tür 2-flüglig ausgebildet wurde, kann bei geöffneter Tür eine gemeinsame Nutzung von Saal und Nebenraum erfolgen. Der Raum selbst folgt dem Gesamt-Gestaltungskonzept. Aufgrund seiner Größe eignet er sich besonders für kleinere Feien oder z.B. für die in Heppenheim so beliebten Jahrgangs-Stammtische oder als Vorbereitungsraum für die Bühnenakteure. Sowohl vom Restaurant als auch vom Saal und vom Nebenraum aus gelangt man in den Flur mit offenem Treppenhaus. Obgleich die aufwändigen Sanierungsarbeiten hier noch nicht ganz abgeschlossen sind, -diese waren zum Baubeginn gar nicht vorgesehen-, erkennt man deutlich, wie einfühlsam hier mit der historischen Bausubstanz umgegangen wurde. Die einmalige Sandtapete konnte in großen Teilen im Brüstungsbereich erhalten bzw. wieder hergestellt werden.

Dazu passend wurden die Wandflächen farblich dezent abgesetzt, sodass ein harmonisches Bild entsteht. „raum in form“ fand auch hier eine außergewöhnliche Lösung für die Beleuchtung: große Pendelleuchten mit innenliegenden Stuckornamenten setzen das Treppenhaus adäquat in Szene. Besonders die Damen und gehbehinderten Menschen dürfte die Nachricht freuen, dass durch eine geschickte Planung nun auch ein Damen-WC auf Erdgeschossebene vor zu finden ist ebenso wie ein behindertengerechtes WC.

Und selbst in den Sanitär-Bereichen, sei es im Bestandsbereich im EG oder beim Damen-WC auf Treppenpodest-Ebene, wurde eine funktionale und optisch ansprechende Lösung realisiert. Abschließend muss man sagen, dass das „Gossini“ für Heppenheim und die ganze Region Bergstraße eine große Bereicherung darstellen wird. Hier wurde mit den engagierten und mutigen Bauherren Gisela und Hans-Jürgen Goss gemeinsam mit der Innenarchitektin Kerstin Bertz von „raum in form Innenarchitektur + Architektur“ eine Location geschaffen, die keine Wünsche offen lässt!

Während vielleicht die jüngeren Semester besonders die ausgefeilte Licht-, Ton- und Videotechnik zu schätzen wissen, freuen sich die Genießer unter uns auf frische regionale Speisen im Restaurant in stimmungsvoller Atmosphäre. Hier ist die Symbiose zwischen Moderne und dem Erhalt historischer Werte in beispielhafter Form gelungen! Gisela und Hans Jürgen Goss haben durchblicken lassen, dass die Erneuerung „Gossini“ noch nicht abgeschlossen ist. Im nächsten Abschnitt soll der Biergarten reaktiviert werden.

Wir danken Gisela und Hans-Jürgen Goss für die angenehme und vertrauensvolle Zusammenarbeit und wünschen der neuen “Event-Location Gossini” viele erfolgreiche Veranstaltungen und viel Erfolg!

Im Namen des gesamten “raum in form” -Teams:

Kerstin Bertz (Dipl.-Ing. Innenarchitektur)

Blättern Sie jetzt in der Projekt-Dokumentation!

raum in form hat bei diesem Projekt folgende Leistungen erbracht:

  • Bestandsaufnahme und Aufmaß
  • Kostenschätzung
  • Konzept- und Entwurfsplanung
  • Einrichtungs- und Beleuchtungskonzept
  • Überwachung Rückbau der vorhandenen Einbauten und Installationen
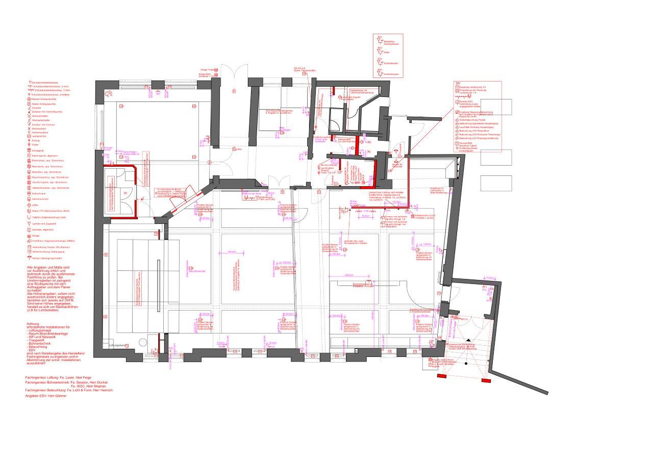
  • Ausführungsplanung für die Gewerke Abbruch, Trockenbau, Maurerarbeiten, Bodenbelagsarbeiten, Fliesenarbeiten, Elektro- und Sanitärinstallation
  • Ausführungsplanung für den individuellen Ausbau im Bereich Restaurant, Lounge, Bar, Veranstaltungssaal und Nebenraum incl. flexibler Trennwandanlage, Eingangs- und Sanitärbereiche, Farb- und Produktauswahl in allen Bereichen
  • Ausschreibung, Erstellen von Preisspiegeln, Preisverhandlungen und Vergabe für die Gewerke Maurerarbeiten, Trockenbau, Stahlbau, Elektro- und Sanitärinstallation, Malerarbeiten, Lüftung, Bodenbelagsarbeiten, Beleuchtung, Türen und Fenster, Verdunklungsanlage, Thekenanlage incl. Beleuchtung und Kältetechnik, Trennwandanlage, Treppenlift
  • Überwachung und Steuerung der Schallschutzmaßnahmen
  • Überwachung und Steuerung der Rekonstruktion historischer Bauelemente sowie deren Einbindung in die Gesamtplanung
  • Erwirkung der Aufnahme des Objektes in die Liste der Kulturdenkmäler
  • Antrag auf denkmalschutzrechtliche Genehmigung der durchzuführenden Arbeiten im Kulturdenkmal
  • Bauleitung incl. ganzheitlicher Projektsteuerung aller Gewerke/ Fachingenieure/ am Projekt Beteiligten, Erstellen und Überwachen der Bauzeiten/ Bauzeitenplan
  • Dokumentation
  • Rechnungsprüfung