Modernisierung eines Firmensitzes in Weinheim

Neukonzeptionierung, Umbau und Neueinrichtung der neuen Europazentrale eines Tochterunternehmens der Freudenberg AG

In nur 5 Monaten Planung- und Umbauzeit hat das Team aus Innenarchitekten und Architekten von raum in form – Innenarchitektur & Architektur den neuen europäischen Firmensitz eines Tochterunternehmens der Freudenberg AG, einem der größten deutschen Unternehmen in Familienhand, neu konzeptioniert und innerhalb von nur zwei Monaten Bauzeit realisiert. Durch die enge Zusammenarbeit mit Fachplanern und den Bauherren konnten die Mitarbeiter im Dezember 2017 in ihre individuell an ihre Wünsche angepassten Büroräumlichkeiten einziehen. Als raum in form – Innenarchitektur & Architektur im Juni 2017 mit der Konzeption, dem Umbau und der Einrichtung der Räumlichkeiten der in Weinheim ansässigen, zur Freudenberg AG, einer der größten deutschen Konzerne in Familienhand gehörigen Tochterfirma Unimatec beauftragt wurde, wurde schnell deutlich, dass ein zum modernen Firmenkonzept passendes Aus- und Umbaukonzept gefunden werden musste, welches den flexiblen Anforderungen der Angestellten gerecht wird. In den neuen Büroräumlichkeiten, die im Laufe des Monats Dezember 2017 bezogen werden sollten, entstand in enger Zusammenarbeit zwischen dem Team von raum in form – Innenarchitektur & Architektur und den Mitarbeitern des europäischen Firmensitzes ein ganzheitliches Einrichtungskonzept, welches speziell auf die Bedürfnisse der Teams zugeschnitten wurde . Hierbei wurden eine Empfangs- und Ausstellungsfläche, verschiedene Besprechungsräume, eine offene Bürofläche sowie Einzel- und Doppelbüros in den ca. 500 m² großen neuen Firmensitz geplant. Wichtig war hierbei, dass jeder Mitarbeiter je nach Aufgabe seinen Arbeitsplatz wechseln kann, um das Arbeiten in Teams zu vereinfachen. Daneben sollte ein Aufenthaltsbereich konzipiert und in die Fläche integriert werden. Hier können die Mitarbeiter entspannte Telefonate führen oder sich zur Ideenfindung zurückziehen.

Außenansicht

Bevor die international agierende Firma Unimatec in die Räumlichkeiten in Weinheim an der Bergstraße eingezogen ist, waren dort zwei weitere zur Freudenberg AG gehörende Unternehmen untergebracht. Obwohl das Gebäude am Rande des Freudenberg Industrieparks neu und modern ist, waren die Räumlichkeiten durch altmodische, sterile Trennwände unterteilt, welche in Oberfläche und Aufteilung nicht den modernen Ansprüchen der Unternehmensführung entsprachen.

 Um möglichst viel Fläche für Großraumbüros zu erhalten, wurde ein Gang um den Kern des Gebäudes angelegt, von welchem diese Büros sowie Küche, Lager und WC‘ s zu erreichen waren. Da dadurch jedoch dort kein natürliches Licht gegeben ist, war dieser Gang extrem eng und “ungemütlich”. Auch aus diesem Grund stand schnell fest, dass „Licht und Luft“ in das Gebäude zu bringen, eine Hauptaufgabe der Innenarchitekten von raum in form – Innenarchitektur & Architektur darstellen würde.

 Auch die Materialität sollte völlig verändert werden – die Schreibtische und Stühle waren nicht einheitlich, die Wände aus unterschiedlichen Oberflächen und der Boden mit Nadelfilz belegt, wodurch eine unruhige und altmodische Atmosphäre entstand, die durch moderne Materialien wie dunkles Holz, großformatige, graue Fliesen und cremefarbene Oberflächen ersetzt wurden. Zudem sollte das gesamte Gebäude wesentlich offener und übersichtlicher gestaltet werden, wodurch die gesamte Etage eine völlig neue Optik erhielt. 

Impressionen vor dem Umbau

Nachdem das Konzept in nur zwei Monaten detailliert ausgearbeitet wurde, konnten die Ausführungsplanungen bereits zu diesem Zeitpunkt mit den Bauherren und den ausführenden Firmen abgestimmt werden. Zudem wurden nach dem Ausbau der bestehenden Trennwände alle Planungen der Innenarchitekten und Architekten von raum in form – Innenarchitektur & Architektur gemeinsam mit den Handwerkern kontrolliert und an die vor Ort vorgefundenen Bedingungen angepasst. 

Damit der enge Zeitplan eingehalten werden konnte, wurde während dieser letzten Planungsschritte bereits mit den Ausschreibungen für die Möblierung sowie dem Verlegen des neuen Bodenbelags, den Malerarbeiten und den Elektroarbeiten begonnen. Das Projekt-Team von raum in form – Innenarchitektur & Architektur, das aus erfahrenen Innenarchitekten und Architekten bestand, koordinierte unter der Leitung von Frau Dipl. Ing. Innenarchitektur Kerstin Bertz sämtliche Baumaßnahmen und achtete neben der Qualität der Ausführung der Arbeiten insbesondere auch durch nahezu tägliche Besuche auf der Baustelle auf die Einhaltung des Bauzeitenplans, so dass der Einzug in die neuen Räumlichkeiten Mitte Dezember, nach nur drei Monaten Umbauzeit gewährleistet war. 

Da die gesamte Fläche zur Verfügung stand und diese offen gestaltet werden sollte, war es eine besondere Herausforderung, ein Schallschutzkonzept zu entwickeln, das den Anforderungen der Mitarbeiter an eine ruhige Arbeitsatmosphäre entspricht und eine damit einhergehende hohe Konzentration während des Arbeitens ermöglicht. Dabei setzte das Team von raum in form – Innenarchitektur & Architektur auf den Einsatz moderner, hinterleuchteter Wand- Elemente, die mit für das Unternehmen repräsentativen Bildmotiven bedruckt  wurden und somit nicht nur die verschiedenen Tätigkeitsfelder des Unternehmens aufgezeigt werden, sondern die gleichzeitig auch den entstehenden Lärm aufnehmen und ein angenehmes Licht erzeugen.

Konzeptplanung

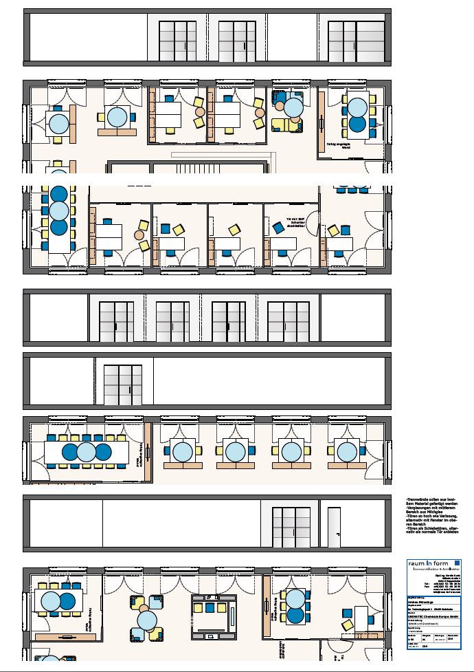
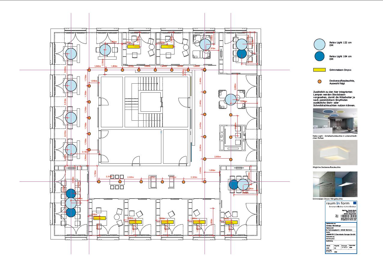
Um eine angepasste, angenehme Arbeitsatmosphäre in dem Gebäude zu erzeugen, entwickelte das Team von Innenarchitekten und Architekten von raum in form – Innenarchitektur & Architektur ein individuelles Beleuchtungskonzept. Hierbei wurde vor allem darauf geachtet, dass die Arbeitsplätze gut ausgeleuchtet sind, ohne jedoch den Mitarbeiter zu blenden. Aus diesem Grund wurden alle Leuchten direkt über dem Arbeitsplatz dimmbar gewählt, während die Grundbeleuchtung in Form von Spots eine angenehme Lichtatmosphäre schafft. Für die Beleuchtung in den Konferenzräumen und über den Gruppenarbeitstischen würde eine Ringleuchte mit rundem Schallschutzelement gewählt, welche farbliche Akzente in der Firmenfarbe setzt und gleichzeitig ein Highlight in der modernen Ausstattung.

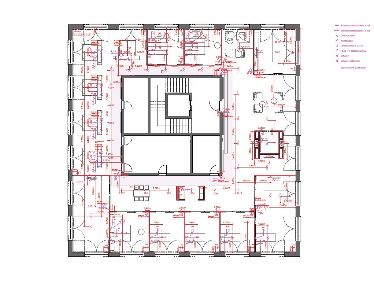
 Bei der Elektroplanung für die Tochterfirma der Freudenberg AG wurde darauf geachtet, dass jeder Arbeitsplatz mit ausreichend Steckdosen versorgt ist, damit jeder Mitarbeiter individuelle Elektrogeräte anschließen kann. Diese Anschlüsse sollten sich dezent in die Gestaltung einfügen, weshalb das Team von raum in form – Innenarchitektur & Architektur eine Elektroausführungsplanung erstellte und die Verlegung der Zuleitungen aus dem den Kern umgebenden Bodentank dezent durch Schlitze in Boden oder Decke sowie aus den Außenwänden in die Trennwände plante.

Ausführungsplanung & Ausführung

Einen wichtigen Schritt für das Team von raum in form – Innenarchitektur & Architektur stellte die Entwicklung und Gestaltung der individuellen Büro-Trennwände mit raumhohen Glasschiebetüren dar, welche sowohl in Gestalt wie auch Materialität an die Wünsche des Unternehmens angepasst und auf Maß gefertigt und eingebaut wurden. Hierbei wurde in enger Zusammenarbeit der verschiedenen ausführenden Firmen darauf geachtet, dass die Elektroinstallationen möglichst dezent in den Trennwänden verschwinden und den Blick auf die moderne und praktische Büroausstattung lenken. 

Fertige Trennwände

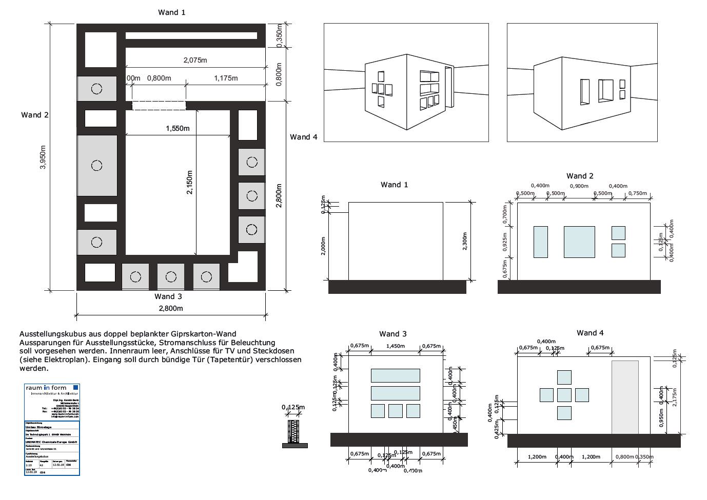
Da Unimatec als zur Freudenberg AG zugehöriges Unternehmen ein bekannter Hersteller von Hochleistungs-Synthesekautschuken und fluorierten Spezialchemikalien mit Standorten in Japan und Singapur, sowie Vertriebsniederlassungen in Europa, USA, China und Singapur ist, besuchen die Firma häufig hochrangige Vertreter verschiedener großer Firmen, die weltweit agieren. Aus diesem Grund war es der Unternehmensführung wichtig, eine markante Ausstellungsfläche zu schaffen, welche nicht nur einen prägnanten Überblick über die Geschäftsbereiche des Unternehmens gibt, sondern gleichzeitig als Wartebereich für Besucher und Loungebereich für die Firmenangehörigen dient. Hierfür wurden von den Innenarchitekten und Architekten von raum in form – Innenarchitektur & Architektur gemütliche Sitzmöbel eingesetzt sowie ein Ausstellungskubus geschaffen, in welchen hinterleuchteten Kästen eingefügt wurden, in denen Produkte der Firma präsentiert werden können.

Ausstellungskubus

Die Fläche, in der die neuen Büroräumlichkeiten untergebracht werden sollten, wurde zunächst vollständig entkernt, da die bisherige Einteilung nicht den modernen Vorstellungen der Firmenleitung entsprach. Die einzelnen Büro- sowie Besprechungsräume sind nach den aktuellen Arbeitsschutz-, Brandschutz- und Schallschutzerfordernissen konzipiert-darüber hinaus ist ein zeitgemäßes Beleuchtungskonzept entwickelt worden, durch das verschiedene Bereiche besonders inszeniert werden. Neben der Konzeption der Modernisierungsmaßnahmen ist darüber hinaus ein ganzheitliches Einrichtungskonzept inklusive Material- und Produktvorschlägen erstellt worden, welches an die Gegebenheiten vor Ort angepasst wurde.

Zustand nach dem Umbau

Blättern Sie jetzt in der Projekt-Dokumentation!