Kernsanierung und Umbau einer Finca zu einer exklusiven Villa auf Mallorca

Kernsanierung und Umbau einer mediterranen Finca zu einer exklusiven, lichtdurchfluteten Villa mit Gästehaus auf Mallorca

Im malerischen Osten von Mallorca wurde „raum in form – Innenarchitektur & Architektur“ beauftragt, eine bestehende und in die Jahre gekommene Villa aus den 1970- er Jahren neu zu konzipieren und im Zuge einer umfassenden Kernsanierung in ein modernes, luxuriöses Feriendomizil zu verwandeln. Die Eigentümer wünschten sich im Rahmen der Kernsanierung auch eine grundlegende Neuordnung der Raumstrukturen, um das Potenzial des Gebäudes und seiner weitläufigen Außenanlagen vollständig auszuschöpfen.

Impressionen nach der Fertigstellung

Ausgangssituation und Aufgabe

Die Finca präsentierte sich vor der  Kernsanierung in einem baulich soliden, aber strukturell veralteten Zustand. Insbesondere im Erdgeschoss fehlten direkte Verbindungen zwischen den zentralen Lebensbereichen: Die Küche war isoliert und ohne direkten Bezug zum Essbereich, während der Essbereich selbst nur über das Wohnzimmer erreichbar war- außerdem verfügten sowohl das Wohn- als auch das Esszimmer über keinerlei Blickachsen in die weitläufigen Außenanlagen mit großem Swimming-Pool. Zudem verfügte die Finca lediglich über eine schmale, steile Treppe in das Obergeschoss, die weder dem Anspruch der Bauherren noch der Großzügigkeit des Hauses gerecht wurde.

Das Ziel des Projektteams von „raum in form- Innenarchitektur & Architektur“ war es, bei der Neukonzeption der grundlegenden Struktur der Villa, eine offene, lichtdurchflutete Raumabfolge zu schaffen, die Innen- und Außenräume in Zukunft fließend miteinander verbindet. Ein besonderes Augenmerk lagen dabei auf der Integration einer offenen Küche, die in den Ess- und Wohnbereich integriert wurde, die Planung und der Bau einer repräsentativen Treppenanlage sowie der Schaffung von Blickbezügen in den bereits mit zahlreichen großen Palmen und mediterraner Vegetation sehr hochwertig angelegten Garten- und Poolbereich.

Impressionen vor dem Ausbau

Konzeption und Planung

Da den Bauherren keine aktuellen Bestandspläne vorlagen, begann „raum in form – Innenarchitektur & Architektur“ zunächst mit einem detaillierten Aufmaß der gesamten Liegenschaft. Auf dieser Basis entwickelte das Projektteam um die Innenarchitektin Kerstin Bertz-Helmbrecht eine umfassende Neukonzeption, die massive statische Eingriffe in die Gebäudestruktur erforderte.

Zentrales Element des Entwurfs war die Versetzung der Küche an einen neuen Standort, der es ermöglichte, diese direkt in den offenen Wohn- und Essbereich zu integrieren. Um den Wunsch der Bauherren nach einem direkten Ausblick in den Garten auch beim Kochen zu erfüllen, wurde ein großer Durchbruch in die Außenwand geplant. Ein neues, großformatiges Schiebefenster verbindet nun die Küche nahtlos mit dem bereits vorhandenen Wintergarten und dem Poolbereich. Zusätzlich wurde eine tragende Wandim Wohnbereich entfernt, sodass nun auch eine optische Verbindung zur Gartenlandschaft besteht. Des Weiteren konnte ein Kamin eingeplant und platziert werden, der vorzugsweise in den kälteren Wintermonaten genutzt wird und für einen behaglichen Wohnkomfort sorgt.

Ein weiteres architektonisches Highlight bildete die Neukonzeption der Treppenanlage. Um eine großzügige, repräsentative Erschließung zu ermöglichen, wurde ein Teil des ursprünglich abgeschlossenen Treppenhauses geöffnet und ein ca. 5 Quadratmeter großes Oberlicht integriert. Dieses flutet das Zentrum des Hauses mit Tageslicht und inszeniert die neue Treppenanlage als skulpturales Element. Die Begehbarkeit des ebenfalls sanierten Flachdachs wurde weiterhin erhalten.

Obergeschoss und private Rückzugsorte

Im Obergeschoss entstand durch den neuen Erschließungskern eine zentrale, lichtdurchflutete Verteilerdiele, von der aus sich die privaten Rückzugsbereiche erschließen. Das Masterschlafzimmer wurde als exklusive Suite mit Ankleide, Masterbad mit barrierefreier Dusche und eigener Terrasse konzipiert.

Zwei weitere Schlafzimmer für die VIP-Gäste der Bauherren verfügen ebenfalls über eigene Bäder en Suite und private Terrassen mit Blick in den Garten. Ergänzt wird das von „raum in form- Innenarchitektur & Architektur“ entwickelte  Raumprogramm durch ein kombiniertes Büro und Fitnesszimmer, das vorzugsweise von der Bauherrin genutzt wird und ebenfalls über einen direkten Zugang zu einer Terrasse verfügt.

Umsetzung und Ausstattungsplanung

Die Umsetzung der Kernsanierung erfolgte durch das raum in form– Handwerkernetzwerk in enger Zusammenarbeit mit lokalen Firmen auf den Balearen. Ein eigener Bauleiter war täglich Vor- Ort, um die Koordination zwischen den verschiedenen Gewerken vorzunehmen sowie die Qualität der Ausführung sicherzustellen, während die Projektleitung durch regelmäßige zweiwöchentliche Baustellenbesuche von Kerstin Bertz-Helmbrecht und ihrem Team gewährleistet wurde.

Für die Böden und Bäder wurde eine ganzheitliche Ausstattungsplanung sowie ein durchgängiges Materialkonzept entwickelt. Die Bemusterung fand direkt vor Ort auf Mallorca statt, wo gemeinsam mit den Bauherren großformatige Fliesen und Natursteine ausgewählt wurden, die den mediterranen Charakter des Hauses unterstreichen, aber modern interpretieren.

Die bestehenden Außenanlagen – darunter der Pool, die Outdoorküche, die Outdoor-Sauna und der Wintergarten – befanden sich bereits in einem sehr guten Zustand und wurden behutsam in das neue Gesamtkonzept integriert. Lediglich die Zuwegungen und    Treppenanlagen im Außenbereich wurden erneuert, um einen ästhetisch stimmigen Übergang zwischen den Ebenen zu schaffen.

Farb-, Material- und Produktvorschläge

Beleuchtungsplanung

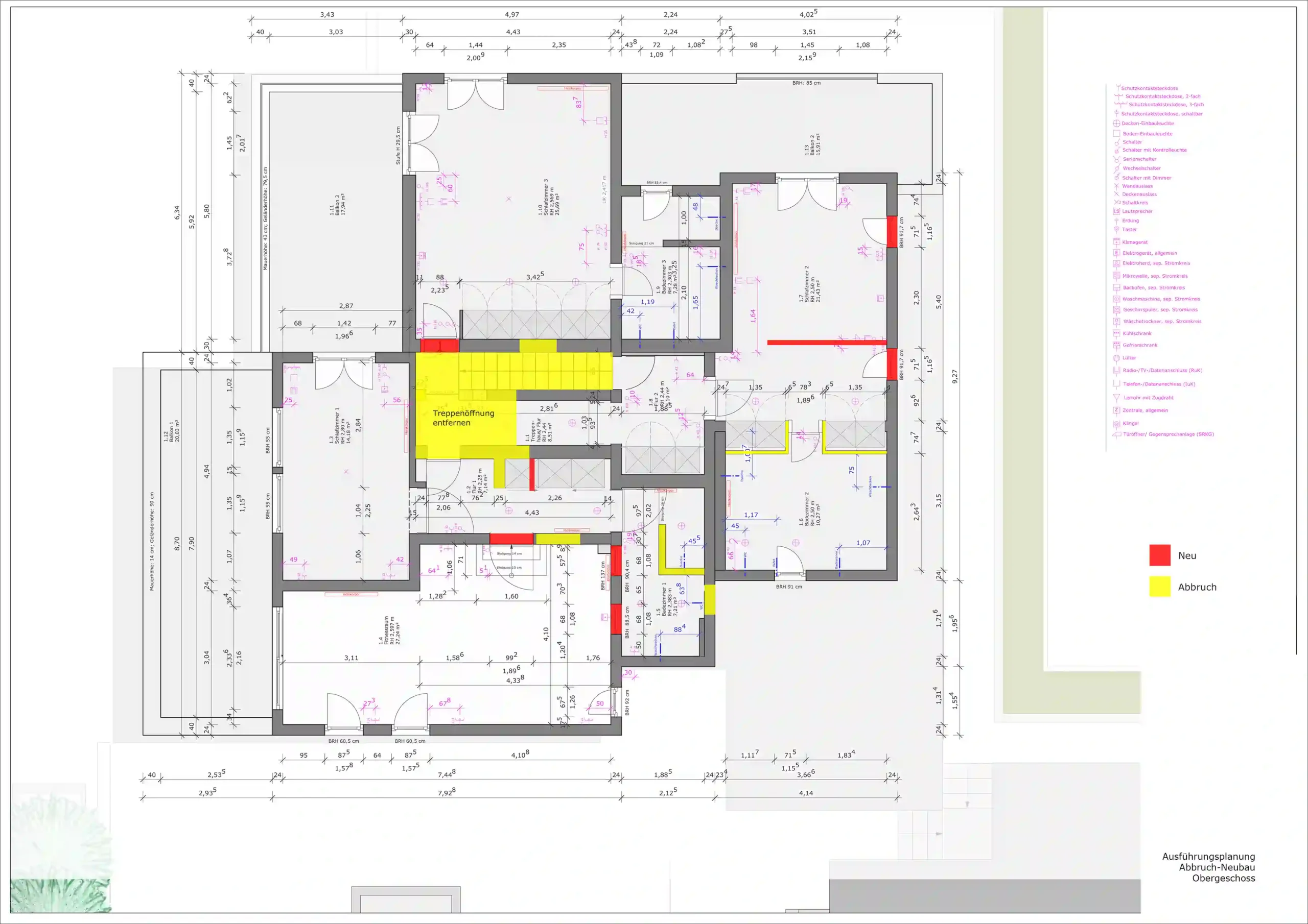
Ausführungsplanung

Statische Eingriffe und Raumerweiterung

Die Eingriffe in die Bausubstanz gingen weit über eine reine Modernisierung hinaus. Im Erdgeschoss wurde die Außenmauer, die ursprünglich gegenüber dem auskragenden Obergeschoss zurücksprang, nach außen verschoben. Durch diese statisch anspruchsvolle Maßnahme, die in Zusammenarbeit mit einem unserer erfahrenen deutschen Statiker geplant und von einem mallorquinischen technischen Ingenieur abgenommen wurde, konnten zwei Schlafzimmer im Erdgeschoss signifikant erweitert werden. Des Weiteren wurde im Bereich der Treppe durch die Entfernung einer tragenden Wand ein Durchgang zum Wohnbereich geschaffen, der es ermöglicht, die ursprüngliche Erschließung durch den Vorflur der Schlafzimmer zu umgehen.

Jedes Schlafzimmer erhielt im Zuge der Umplanung ein eigenes Bad „en Suite“. Auch das Gäste-WC wurde neu positioniert und so konzipiert, dass es auch vom Außenbereich aus für Poolgäste gut erreichbar ist.

Impressionen während des Ausbaus

Ergebnis und Mehrwert für die Bauherren

Durch die Kernsanierung wurde die Villa nicht nur technisch durch Austausch der kompletten Haustechnik auf den neuesten Stand gebracht, sondern auch architektonisch in eine neue Liga gehoben, da die ursprünglich kleinteilige Struktur der Finca zu einem offenen, lichtdurchfluteten Raumkontinuum transformiert wurde.

Die strategische Platzierung der neuen Küche und der Ausblick von allen Wohnbereichen in den weitläufigen Garten- und Poolbereich, die Erweiterung der Schlafbereiche und vor allem die Lichtdurchflutung des neuen Oberlichts über der Treppenanlage haben den Wohnwert der Immobilie massiv gesteigert. Die Bauherren genießen nun ein Feriendomizil, das Großzügigkeit, Privatsphäre und mediterranes Lebensgefühl auf höchstem Niveau vereint.

Impressionen Vorher / Nachher