Kernsanierung eines Einfamilienhauses im Raum Darmstadt

Kernsanierung, Umbau und Modernisierung eines Einfamilienhauses mit Nebengebäude im Raum Darmstadt

„raum in form- Innenarchitektur & Architektur“ wurde damit beauftragt, ein Bestandsgebäude mit Nebengebäude aus den 1950-er Jahren einer aufwendigen Kernsanierung zu unterziehen und konzeptionell so umzubauen und zu modernisieren, dass das Objekt zukünftig von einer jungen Familie mit zwei Kindern genutzt werden kann.

Die besondere Herausforderung der Kernsanierung des Hauptgebäudes war, dass für das gesamte Objekt zunächst ein neues statisches Konzept entwickelt werden musste, da das Haus erhebliche bauliche und statische Mängel aufwies, deren Ursprung zunächst nicht bekannt waren. Des Weiteren wurde das Haus über einige Generationen mehrmals an- und umgebaut, sodass auch unterschiedliche Decken- bzw. Fußbodenniveaus vorhanden waren, die im Zuge der Kernsanierung auf ein einheitliches Niveau gebracht werden sollten. Das Bestandshaus war auch hinsichtlich der ursprünglichen Zimmeraufteilungen im Stil der 1950-er Jahre konzipiert, was nicht mehr zeitgemäß war. Auch der alte Kohlenkeller, alte Heizungen und die nur noch in Teilen vorhandene Treppe mussten umfangreichen Modernisierungen unterzogen werden. Aus diesen Gründen musste das Objekt zunächst konzeptionell komplett neu durchdacht werden und verschiedene Konzepte für sämtliche Ebenen erarbeitet werden.

raum in form hatte bereits bei der ersten Vorort-Begehung den Bauherren erste Ideen unterbreitet, wie die zukünftige Nutzung und der benötigte Raumbedarf der jungen Familie in dem Objekt realisiert werden könnte, woraus dann – auch in Einbeziehung des großen Gartengrundstücks, auf dem ebenfalls Freiplätze, Terrassen und Balkone entstanden – mehrere Nutzungskonzepte erarbeitet wurden.

Impressionen nach der Fertigstellung

Das Haupthaus und Nebengebäude war bei Ankauf durch unsere Bauherren in einem sehr schlechten Bauzustand- typisch für die 1950-er Jahre waren dunkelbraune Fliesen, abgehängte Holzdecken, kleine Fenster und eine unpraktische und eher beengte Raumaufteilung. Außerdem war das Haus bereits von Schimmel befallen, besaß diverse unterschiedliche Bodenniveaus und eine alte, ausgetretene und marode Treppe, die nicht bestehen bleiben konnte. Dies unter anderem auch aus dem Grund, dass diese im Dachgeschoss nicht genug Kopfhöhe bot.

Den größten Sanierungsbedarf wies die Fassade auf- diese hatte vor allem im Eingangsbereich grossflächige Risse, welche nach eingehender Untersuchung durch einen Statiker aus dem raum in form- Netzwerk zum Abriss dieses Bereichs führten, da keine Fundamente vorhanden waren.

Die im Dachgeschoss bereits vorhandenen Gauben, das gesamte Dachgebälk inklusive der Ziegel waren in einem so schlechten Zustand, dass beschlossen wurde, den Dachstuhl komplett neu zubauen, die Gauben zu erneuern und deren Platzierung zu optimieren. Die zu kleinen Fenster im gesamten Objekt waren ebenfalls in einem sehr schlechten Zustand und wurden komplett durch neue und größere Fenster ersetzt. Die durch raum in form entwickelte Neukonzeption des Hauses sah vor, verschiedene Wände zu entfernen und durch statische Ersatzmaßnahmen, wie dem Einbau mehrerer Unterzüge zu ersetzen , sodass ein offenes und zeitgemäßes Raumszenario geschaffen werden konnte.

Konzeptplanungen und Einrichtungskonzeption

Impressionen vor dem Umbau

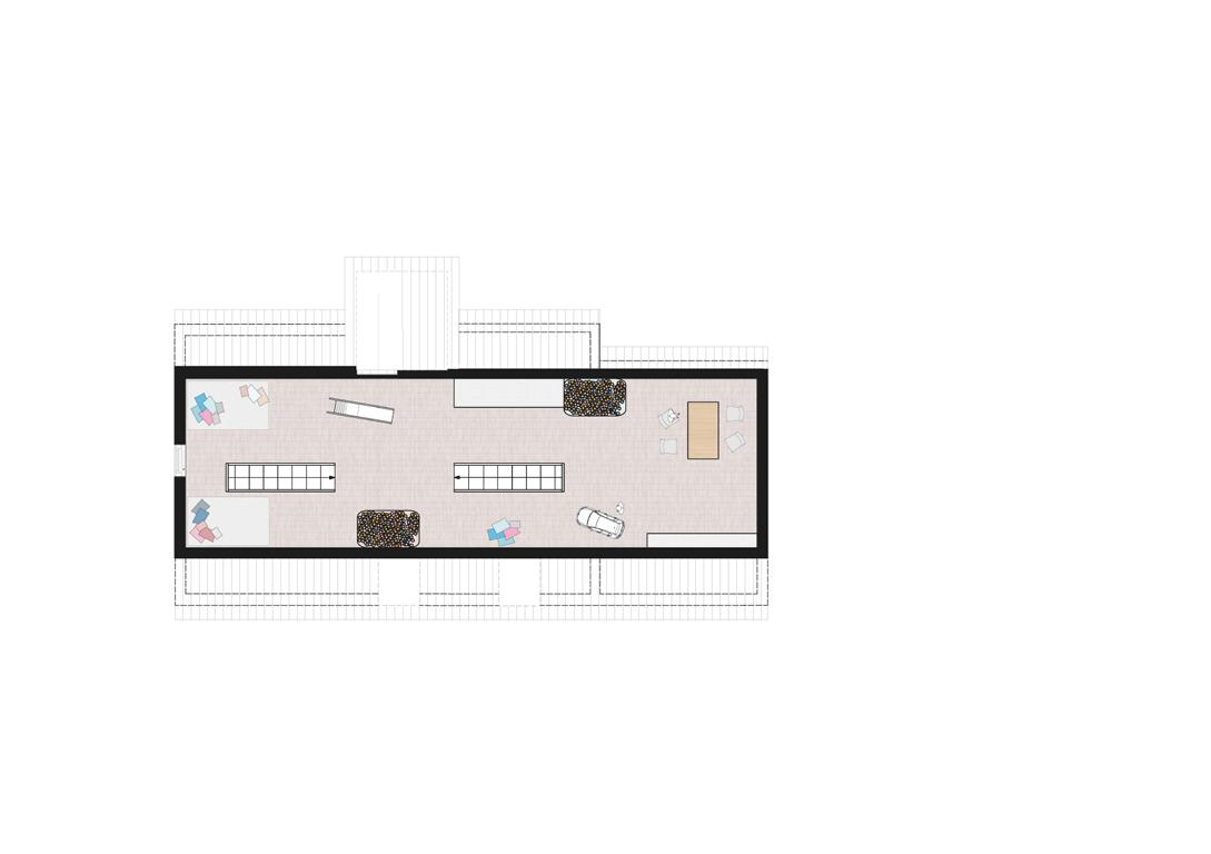
Der Eingangsbereich, der in Verbindung mit dem Treppenaufgang stand, musste nach eingehenden statischen Untersuchungen komplett abgerissen werden, da festgestellt wurde, dass keine Fundamente vorhanden waren. Daher wurde auch für den Neubau dieses Bereichs ein Bauantrag gestellt, um den Eingangsbereich inklusive Treppenhaus neu bauen zu können und so statisch korrekt an das Bestandsgebäude anzubinden. Der neu errichtete Eingangsbereich mit neuer Treppenanlage konnte durch diese Maßnahme so geplant werden, dass unterhalb der Treppe ein großzügiger Garderobenbereich entstand. In den Kellerräumen wurden weiterhin auch Nutzräume untergebracht, wie z.B. die Heizungsanlage. Im Erdgeschoss wünschten sich die Bauherren eine offene Küche mit direktem Zugang an einen vor den Blicken der Gäste geschützten Hauswirtschaftsraum, in dem die Waschmaschine, der Trockner und verschiedene Regale Platz finden. Außerdem sollte eine beheizte Sitzmöglichkeit, die direkt an den Kamin angebunden ist, als Übergang zum Essbereich dienen. Von hier wurde ein großzügiger Durchgang zum jetzigen Wohnbereich geschaffen, der durch bodentiefe Fenster einen hervorragenden Blick mit Durchgang zur großen Terrasse bietet. Von der Terrasse aus kann man über eine neu geplante und gebaute Treppenanlage den weitläufigen Garten erreichen. Zur Straßenseite hin ist im Erdgeschoss zum einen ein Gästebereich mit Schlafmöglichkeit und Badezimmer entstanden und zum anderen ein Arbeitszimmer für die Bauherrin.

Über die neue Treppenanlage ist das Obergeschoss, in welchem sich die Privaträume der Familie befinden, zu erreichen. Nach mehreren ideenreichen Konzeptvorschlägen und Anpassungen des raum in form- Planungsteams in Kombination mit den Wünschen und Ideen der Bauherren bezüglich der Planung des Obergeschosses, entschlossen sich die Bauherren, die Schlafräume in Richtung der ruhigen Gartenseite an der Rückseite des Gebäudes vorzusehen. Das Master-Schlafzimmer erreicht man durch das weiträumige Ankleidezimmer der Bauherren. Ebenfalls zur Gartenseite gerichtet, befinden sich die beiden Kinderzimmer, welche über ein gemeinsames Spielzimmer erreicht werden. In diesem Vorraum befindet sich auch ein nützlicher Wäscheabwurf, der direkt in den Hauswirtschaftsraum führt. Die Besonderheit der Kinderzimmer besteht darin, dass über ein Treppenaufgang, der von beiden Zimmern zu erreichen ist, das neu ausgebaute Dachgeschoss erschlossen werden kann. Hier befindet sich eine Spieloase für die beiden Jüngsten. Ursprünglich war eine weitere Treppe über das Master-Schlafzimmer in das Dachgeschoss geplant, um Staumöglichkeiten zu schaffen. Allerdings entschied die Bauherrin, diesen Bereich ihren Kindern zu überlassen. Auf der Obergeschossebene befindet sich neben den Schlafzimmern der Familie auch das luxuriöse Master-Badezimmer, welches von allen Familienmitgliedern gemeinsam genutzt wird.

Auch für die Scheune wurden mehrere Konzepte entwickelt, die in der Scheune geplante Wohnung ist zur Vermietung vorgesehen und kann später von einem der Kinder genutzt werden. Im Außenbereich wurde ein großer Freiplatz gestaltet und umfangreiche Pflasterarbeiten durchgeführt, um mehrere Fahrzeuge im Hof parken zu können. Das terrassierte Gelände wird über eine Treppe erschlossen. Der Garten grenzt direkt an einen natürlichen Bach und wurde mit einem Pool ausgestattet. Zusätzlich wurden im Garten verschiedene Spielgeräte für die Kinder eingeplant und errichtet.

Impressionen während des Umbaus

Während der Kernsanierung fand auf der Baustelle ein wöchentlicher “Jour- Fix” statt, um die verschiedenen Gewerke und Handwerksfirmen aus dem raum in form- Handwerkernetzwerk zu koordinieren.

Das Gebäude musste zunächst komplett entkernt werden, um den verschiedenen baulichen Mängel auf den Grund zu gehen und die entsprechend schadhaften Stellen freizulegen. Teilweise waren die Holzdecken so marode, dass komplette Decken ausgetauscht werden mussten- es mussten neue Träger eingezogen werden und Teile der Decken mussten neu ausbetoniert werden. Die bestehende Treppe musste ebenso nach gründlicher statischer Untersuchung durch einen Treppen-Neubau ersetzt werden. Die im Konzept geplanten Fenster wurden nach den Wünschen der Bauherren vergrößert und Brüstungen wurden nach unten versetzt, um mehr Licht in die Räume einfallen zu lassen. Eine weitere Herausforderung stellte der neu zu planende offene Kamin dar, der als Mittelpunkt und Übergang von Küche, Essbereich zum Wohnbereich dienen sollte. Dies fand in Zusammenarbeit mit einem sehr kompetenten Heizungsbauer statt, welcher eine individuelle Lösung präsentierte und umsetzte.

Neben der Erstellung der Konzept-, Baugenehmigungs- und Ausführungsplanungen für sämtliche Bereiche und Gewerke, wurde raum in form von den Bauherren mit der Ausschreibung, Vergabe und Rechnungskontrolle sowie der Projektsteuerung und Bauleitung beauftragt.

Blättern Sie jetzt in der Projekt-Dokumentation!