Fertigstellung der Konzeptplanungen und Baubeginn bei der Modernisierung einer Eigentumswohnung im Raum Frankfurt….

Nachdem raum in form- Innenarchitektur & Architektur im Juni dieses Jahres mit den Konzept- und Ausführungsplanungen für die Modernisierung einer Eigentumswohnung im Raum Frankfurt beauftragt wurde, wurden innerhalb von nur vier Wochen die Konzept- und Ausführungsplanungen fertiggestellt. Unmittelbar nach Besprechung und Freigabe der Konzept- und Ausführungsplanungen wurde die raum in form- Bau- und Sanierungsgesellschaft mit allen Umbau- und Modernisierungsarbeiten beauftragt und mit den ersten Abbruch- und Trockenbauarbeiten begonnen.

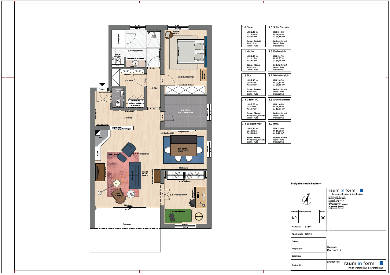
Im Zuge der Projektplanung wurden unter Berücksichtigung der individuellen Bedürfnisse der Bauherrin – insbesondere ihres Wunsches zur Wiederverwendung vorhandener Möbel sowie der bereits festgelegten Zimmeraufteilung – zwei verschiedene Konzepte erstellt. Dabei war die Umnutzung des bestehenden Badezimmers in einen funktionalen Hauswirtschaftsraum und ein Gäste-WC gewünscht. Des Weiteren ist geplant, das ursprüngliche Kinderzimmer in ein modernes Badezimmer mit Fußbodenheizung und Infrarotkabine umzugestalten. Der hauptsächliche Unterschied zwischen den beiden vorgeschlagenen Konzepten lag in der Ausgestaltung dieser beiden Räume.

Zusätzlich bestand ein wesentliches Anliegen der Bauherrin darin, basierend auf dem gemeinsam mit dem Planungsteam abgestimmten Finalkonzept, ein ganzheitliches Beleuchtungskonzept zu entwickeln.

Während der Präsentation der entwickelten Konzepte entschied sich die Bauherrin für die zweite Konzept-Variante. Nach einer umfassenden gemeinsamen Ideenfindung und kleineren Anpassungen resultierte daraus das Finalkonzept. Ein besonderes Merkmal dieses Projektes war die Wiederverwendung einiger Materialien aus dem Bestand- hierbei wurde beispielsweise die ursprüngliche Küchentür zu der neuen Badezimmertür umgestaltet, während Teile des vorhandenen Parketts Anwendung im neu entstehenden Hauswirtschaftsraum finden.

In einem weiteren Vor-Ort-Termin Ende Juni wurde neben der Auswahl von Materialien, Fliesen und Farbschemata auch die Vergabe der Handwerksleistungen auf Grundlage der von raum in form – Innenarchitektur & Architektur erstellten Ausführungspläne vorgenommen. Die raum in form – Bau- und Sanierungsgesellschaft, welche als Generalunternehmer tätig ist und über mehr als 40 eigene Handwerker verfügt, wurde mit der Durchführung sämtlicher Baumaßnahmen betraut. Aufgrund der Synergie der beiden Unternehmen konnte bereits drei Tage nach der Vergabe der Aufträge mit den Abrissarbeiten begonnen werden.

Im Laufe der Abbrucharbeiten wurde festgestellt, dass die vorhandenen Entwässerungspläne nicht mit den tatsächlichen Bestandsleitungen übereinstimmen. Zudem wurde eine veraltete Flachbandkabel-Installation in der Eigentumswohnung aufgedeckt, die nicht mehr den geltenden Bauvorschriften entspricht. Infolgedessen musste die Planung und Verlegung aller Elektroleitungen von Grund auf erneuert werden. Die sorgfältige Analyse der vorhandenen Bausubstanz wurde durch einen erfahrenen Meister für Heizung, Lüftung und Sanitär der raum in form – Bau- und Sanierungsgesellschaft durchgeführt.

Nach Abschluss der Abbruch- und Trockenbauarbeiten steht die Auswahl der Sanitärausstattung an. Basierend auf dieser Auswahl erfolgt die detaillierte Planung der sanitären Einrichtungen in enger Zusammenarbeit mit der raum in form – Bau und Sanierungsgesellschaft. Anschließend werden die neuen Elektro- und Entwässerungsleitungen verlegt, die Fußbodenheizung im Badezimmer installiert und die Arbeiten an den Elektroinstallationen, wie z. B. das Anbringen neuer Steckdosen, fortgesetzt. Parallel dazu beginnen die Arbeiten am Innenausbau einschließlich dem Verspachteln, Schleifen, Verputzen und Tapezieren der Wände. Die geplante Fertigstellung des Projektes ist für Ende September vorgesehen.